Casa de vacanta, 140 mp, 5 camere, jacuzzi, sauna, Buscat Ski/Muntele Baisorii
Oferta accesata nu mai este disponibilă.
Poți vedea oferte din aceeași categorie sau poți contacta agentul pentru o oferta personalizată.
VEZI OFERTE SIMILARE
Casa de vacanta, 140 mp, 5 camere, jacuzzi, sauna, Buscat Ski/Muntele Baisorii
Linkuri rapide filtrate după cele mai căutate zone și numărul de camere
ID: BLITZ 25719CV
Cartier: FloreştiPreț/mp: 742 €
Actualizat: 03.07.2019
Zona: TautiRata lunară: 453,07 €
Anunță-mă când scade prețul
Trimite oferta de preț
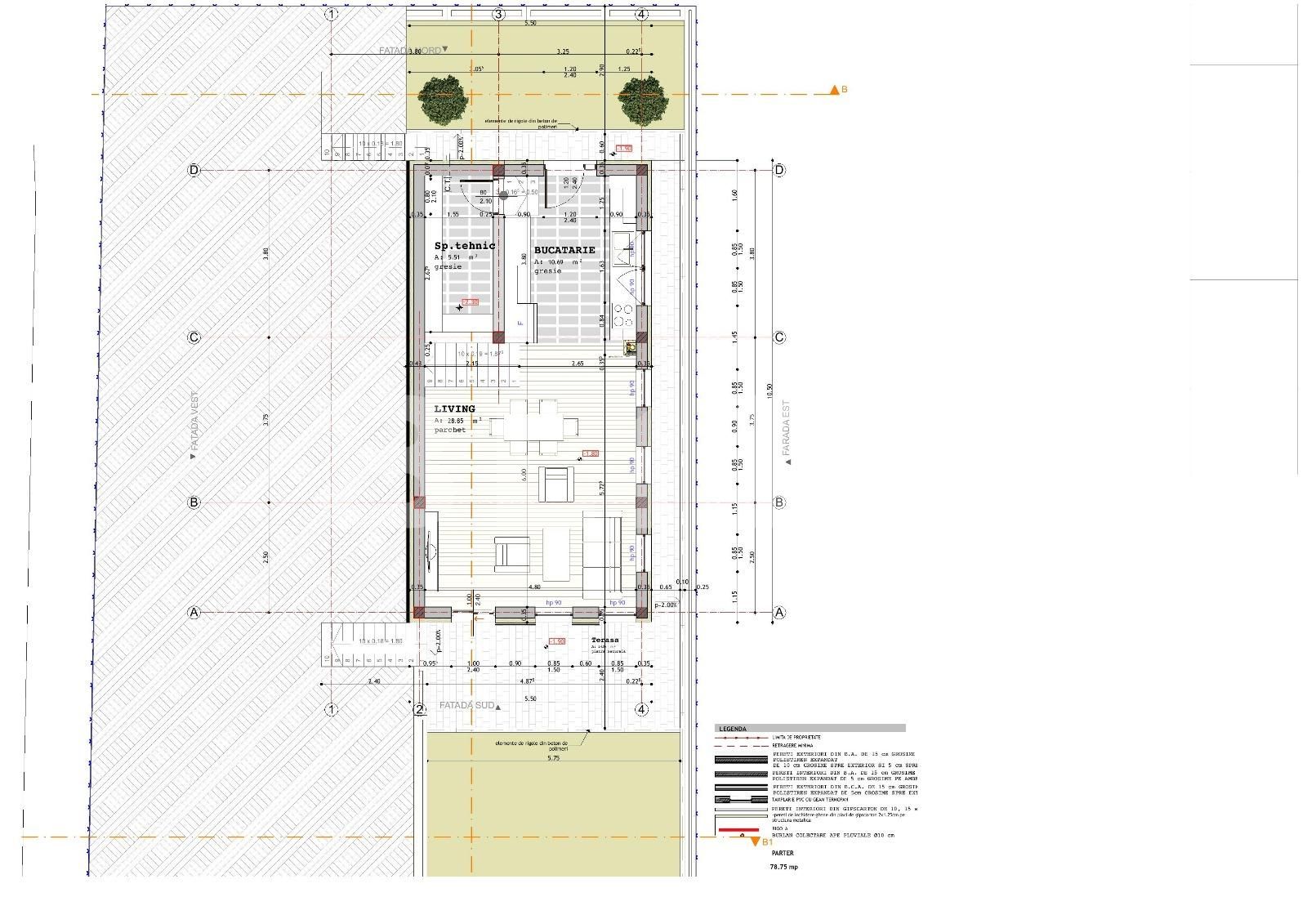
Suprafață casă: 120 mp
Teren: 250 mp
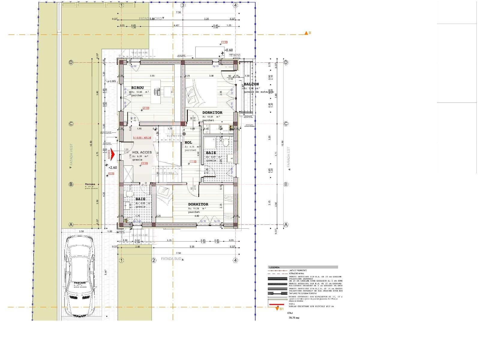
Număr de camere: 5
Nr. bucătării: 1
Nr. băi: 3
Nr. balcoane: 1
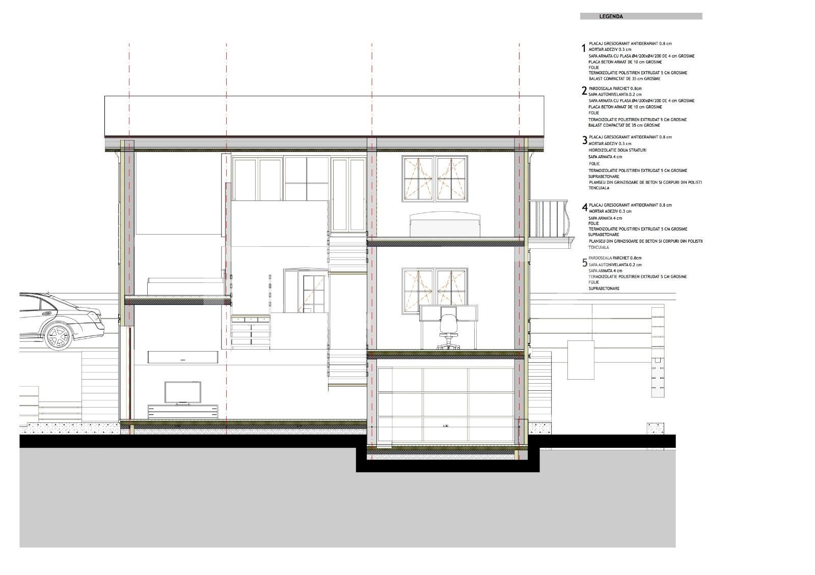
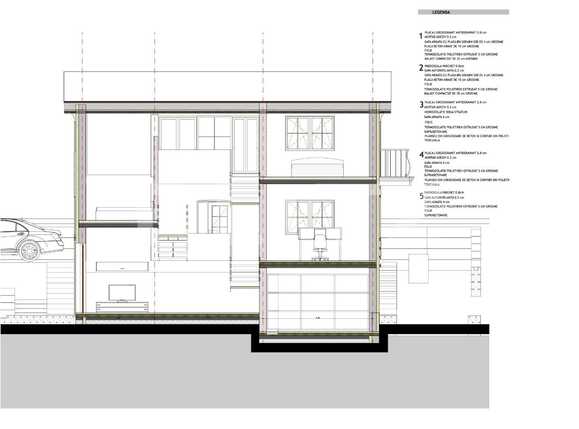
Niveluri: Demisol, Parter, Etaj 1
Locuri de parcare: 2
Vechime casă: Nouă
Destinație: De locuit
Dotări: Nemobilat
Tip finisaj: Semifinisat
Materiale construcție: Cărămidă
Tip acoperiș: Țiglă
Modalitate vânzare: Credit bancar, Cash
An construcție: 2017
Link-uri utile
Linkuri rapide filtrate după cele mai căutate zone și numărul de camere