Oportunitate!Casă, 6 camere de vânzare, COMUNA LIVADA, 984 mp teren, priveliște!
Oferta accesata nu mai este disponibilă.
Poți vedea oferte din aceeași categorie sau poți contacta agentul pentru o oferta personalizată.
VEZI OFERTE SIMILARE
Oportunitate!Casă, 6 camere de vânzare, COMUNA LIVADA, 984 mp teren, priveliște!
Linkuri rapide filtrate după cele mai căutate zone și numărul de camere
ID: BLITZ 34272CV
Cartier: Exterior VestPreț/mp: 606 €
Actualizat: 19.04.2019
Zona: Fara zonaRata lunară: 432,20 €
Anunță-mă când scade prețul
Trimite oferta de preț
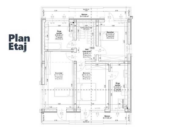
Suprafață casă: 140 mp
Teren: 250 mp
Număr de camere: 5
Nr. bucătării: 1
Nr. băi: 3
Nr. balcoane: 2
Niveluri: Parter, Etaj 1
Vechime casă: Nouă
Destinație: De locuit
Dotări: Nemobilat
Tip finisaj: Semifinisat
Materiale construcție: Cărămidă
Tip acoperiș: Tabla
Modalitate vânzare: Credit bancar, Cash
An construcție: 2018
Link-uri utile
Linkuri rapide filtrate după cele mai căutate zone și numărul de camere