Casa individuala 5 camere, teren 2800 mp in Moldovenesti
Oferta accesata nu mai este disponibilă.
Poți vedea oferte din aceeași categorie sau poți contacta agentul pentru o oferta personalizată.
VEZI OFERTE SIMILARE
Casa de vacanta in curs de modernizare in Belis, 5 camere, 920mp teren drept

Casa Bontida cu mai multe anexe de inchiriat pe parcursul festivalului Electric
Linkuri rapide filtrate după cele mai căutate zone și numărul de camere
Anunță-mă când scade prețul
Trimite oferta de preț
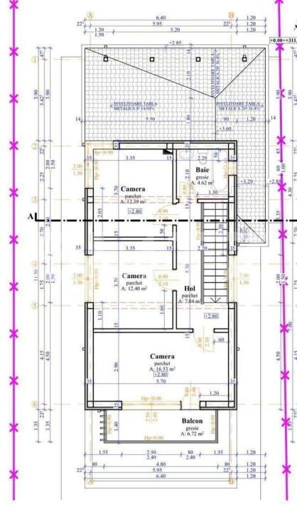
Suprafață casă: 112 mp
Teren: 426 mp
Număr de camere: 5
Nr. bucătării: 1
Nr. băi: 2
Nr. balcoane: 1
Locuri de parcare: 1
Vechime casă: Nouă
Dotări: Nemobilat
Tip finisaj: Semifinisat
Tip acoperiș: Țiglă
An construcție: 2023
Link-uri utile
Linkuri rapide filtrate după cele mai căutate zone și numărul de camere