Casa nouă individuală 120 mp, teren 805 mp, Tureni
Oferta accesata nu mai este disponibilă.
Poți vedea oferte din aceeași categorie sau poți contacta agentul pentru o oferta personalizată.
VEZI OFERTE SIMILARELinkuri rapide filtrate după cele mai căutate zone și numărul de camere
ID: BLITZ 30740CV
Cartier: ManasturPreț/mp: 791 €
Actualizat: 04.09.2020
Zona: Edgar QuinetRata lunară: 906,15 €
Anunță-mă când scade prețul
Trimite oferta de preț
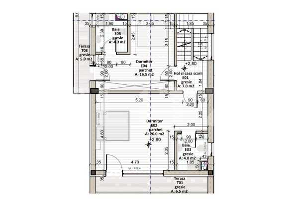
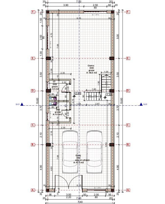
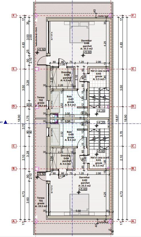
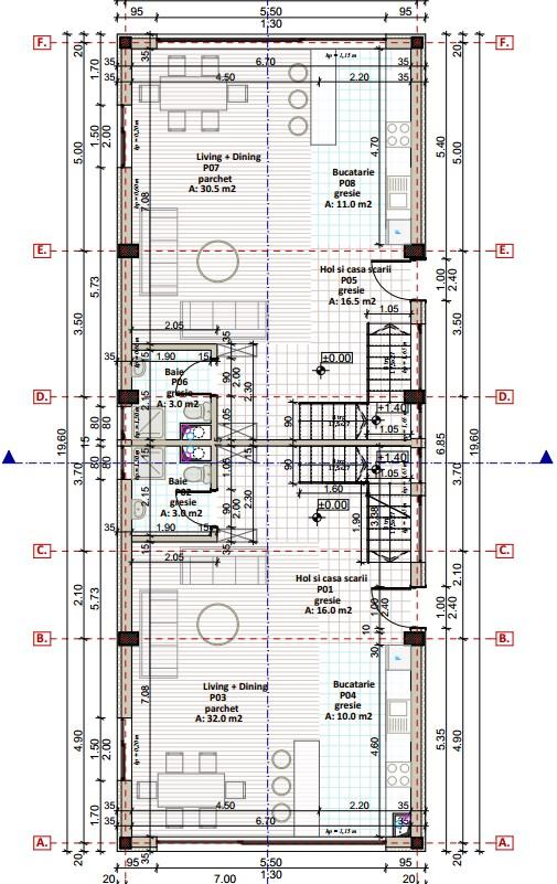
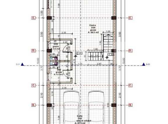
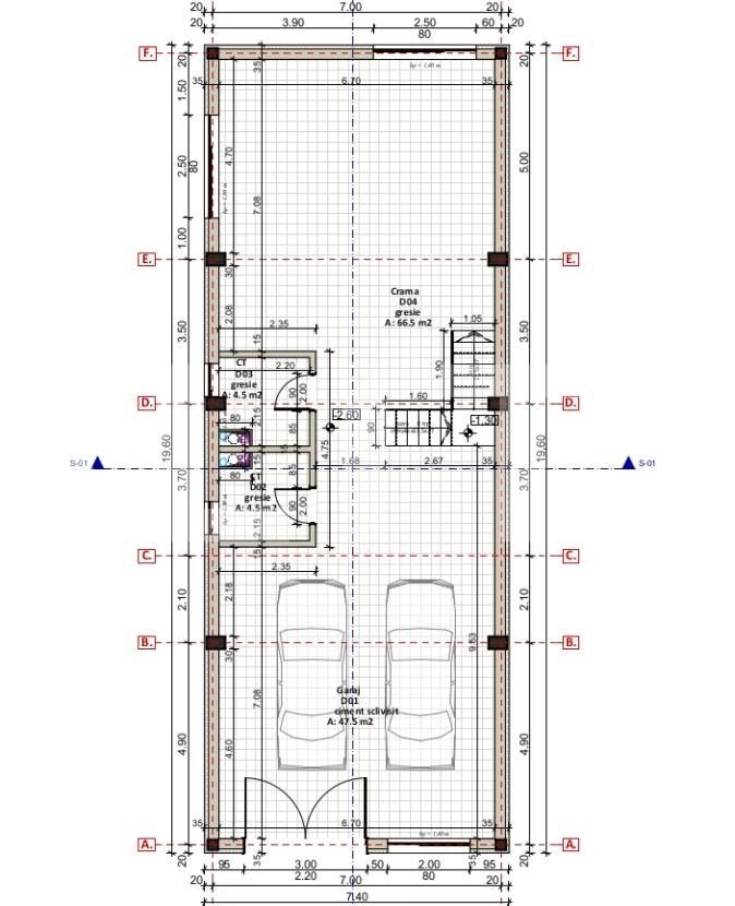
Suprafață casă: 225 mp
Teren: 200 mp
Număr de camere: 4
Nr. bucătării: 1
Nr. băi: 4
Niveluri: Demisol, Parter, Etaj 1, Etaj 2
Vechime casă: Nouă
Destinație: De locuit
Dotări: Nemobilat
Tip finisaj: Semifinisat
Materiale construcție: Cărămidă
Tip acoperiș: Țiglă
Modalitate vânzare: Credit bancar, Cash
An construcție: 2018
Link-uri utile
Linkuri rapide filtrate după cele mai căutate zone și numărul de camere