Casa la rosu 91 mp utili, 976 mp teren, in Luna, langa Campia Turzii
Oferta accesata nu mai este disponibilă.
Poți vedea oferte din aceeași categorie sau poți contacta agentul pentru o oferta personalizată.
VEZI OFERTE SIMILARELinkuri rapide filtrate după cele mai căutate zone și numărul de camere
ID: BLITZ 57957CV
Cartier: IrisPreț/mp: 1.192 €
Actualizat: 11.02.2021
Zona: Bulevardul MunciiRata lunară: 727,97 €
Anunță-mă când scade prețul
Trimite oferta de preț
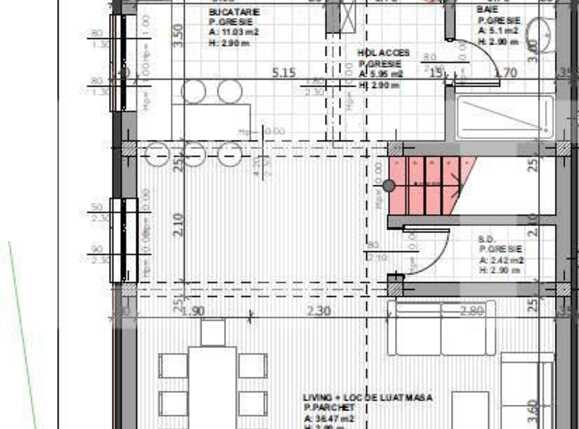
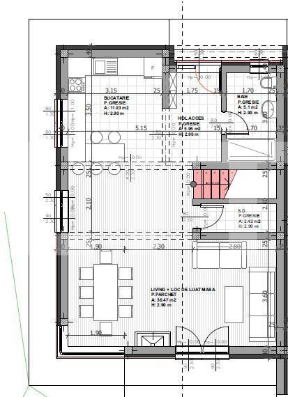
Suprafață casă: 120 mp
Teren: 266 mp
Număr de camere: 4
Nr. bucătării: 1
Nr. băi: 2
Niveluri: Parter, Etaj 1, Pod
Locuri de parcare: 1
Vechime casă: Nouă
Destinație: De locuit
Dotări: Nemobilat
Tip finisaj: Semifinisat
Materiale construcție: Cărămidă
Tip acoperiș: Țiglă
Modalitate vânzare: Credit bancar, Cash
An construcție: 2020
Link-uri utile
Linkuri rapide filtrate după cele mai căutate zone și numărul de camere