BLITZ va propune spre vanzare in EXCLUSIVITATE o proprietate individuala aparte, situată într-o zonă strategică din aria metropolitana Cluj, în spatele viitorului Spital Regional, la limita pădurii de pini, beneficiind de intimitate si priveliști panoramice spectaculoase.
Proprietatea este gândită multifuncțional, fiind potrivită atât pentru o familie numeroasă, cât și pentru activități comerciale sau investiționale (pensiune urbană, azil de bătrâni, clinică, sediu firmă, activități educaționale sau corporate).
- Suprafață utilă: 380 mp
- Teren: 525 mp
- Regim de înălțime: Demisol + Parter + Etaj + terasă circulabilă
- Poziționare unică: la limita pădurii, fără construcții în față
FUNCTIONALITATE dovedită – ideal pentru familie numeroasa sau business
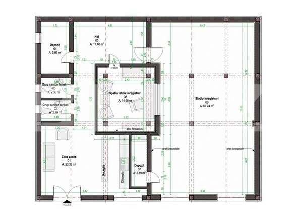
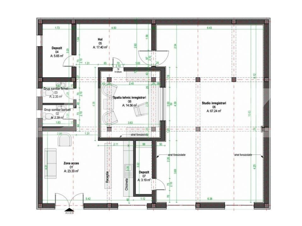
DEMISOL:
– 136 mp utili dispune de un open space 67 mp, perfect pentru sală de activități, recreere, conferințe, hobby sau spațiu comun
- Zonă primire oaspeți
- 2 băi
- Spații de depozitare
Ideal pentru activități de grup, zone comune sau facilități dedicate unui business.
PARTER – 114 mp ofera acces dublu si deci utilizare independentă
Dispune de 2 intrări separate, permițând amenajarea unui apartament complet independent de aprox. 60 mp utili, format din:
- 2 camere distincte
- Bucătărie
- Baie
- Dressing
Soluție excelentă ca si apartament de oaspeti sau: cazare separată (administrator, personal) ; birou / cabinet; închiriere independentă
ETAJ – 131 mp utili
- 5 dormitoare
- 3 băi
- Dormitor matrimonial de 36 mp, cu baie proprie – ideal atât pentru uz rezidențial, cât și pentru cameră premium într-o pensiune sau centru rezidențial.
Compartimentare optimă pentru: familie numeroasă; cazare multiplă; camere individuale pentru rezidenți / clienți
ATU MAJOR: panoramă + natură
- Priveliște panoramică deschisă, fără obstacole
- Poziționare la marginea pădurii de pini, aer curat și intimitate
- Terasă superioară circulabilă, perfectă pentru relaxare, sau zone comune pentru clienți
DOTARI TEHINICE care susțin utilizarea intensivă:
- Centrală proprie, boiler, pompe
- Gaz, canalizare, curent trifazic 380V
- Internet fibră optică, Wi-Fi și TV în fiecare cameră
- Sistem complet de securitate + supraveghere video
- Sistem multimedia profesional cu amplificare de semnal
- Aer condiționat inverter (demisol și living)
- Tablouri electrice separate pe fiecare zonă
- Sistem fotovoltaic 8 kW + baterie 10 kW – prosumator activ
- Posibilitate încărcare mașină electrică
EXTERIOR funcțional:
- Curte pavată cu 5–7 locuri de parcare
- Grădină amenajată, irigație cu apă pluvială
- Foișor 15 mp + zonă grătar
BONUS: Spațiu tehnic exterior din beton 20 mp (atelier / depozit)
O proprietate rară pe piață, cu suprafețe mari, compartimentare flexibilă și poziționare excepțională, care se adaptează ușor unei familii extinse, unui proiect de tip pensiune / azil / centru rezidențial, sau unui business cu activitate mixtă!
Cod ofertă / ID BLITZ: P165328