IMOBIL MIXT P+E – Locuință + Spațiu comercial | 133,45 mp utili, Semicentral
Oferta accesata nu mai este disponibilă.
Poți vedea oferte din aceeași categorie sau poți contacta agentul pentru o oferta personalizată.
VEZI OFERTE SIMILARE
IMOBIL MIXT P+E – Locuință + Spațiu comercial | 133,45 mp utili, Semicentral
Linkuri rapide filtrate după cele mai căutate zone și numărul de camere
ID: BLITZ 30313AV
Cartier: ManasturPreț/mp: 753 €
Actualizat: 18.05.2021
Zona: Gradini ManasturRata lunară: 1.883,56 €
Anunță-mă când scade prețul
Trimite oferta de preț
Nr. camere: 4+
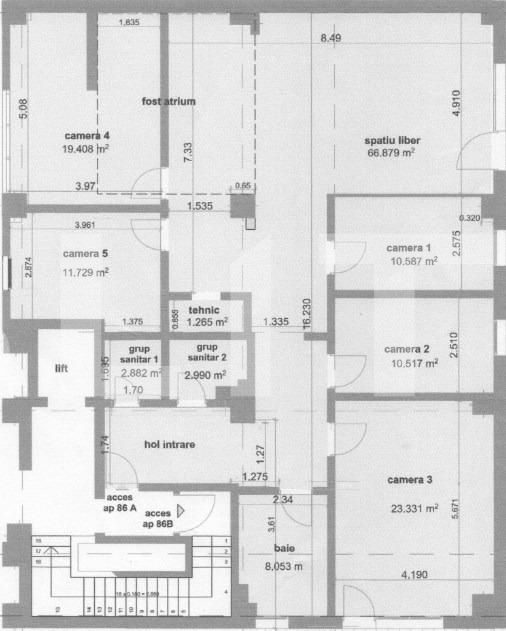
Suprafață utilă: 491.57 mp
Nr. băi: 3
Etaj: 10 /11
Boxă la subsol: Nu
Tip compartimentare: Semidecomandat
Vechime apartament: Nou
Tip imobil: Bloc de apartamente
Dotări: Nemobilat
Anul construcției: 2008
Tip finisaj: Finisat
Materiale construcție: Cărămidă
Modalitate vânzare: Credit bancar, Cash
Link-uri utile
Linkuri rapide filtrate după cele mai căutate zone și numărul de camere