Apartament cu 4 camere, 86 mp, terasă de 30 mp și parcare inclusă, zona Zorilor
Oferta accesata nu mai este disponibilă.
Poți vedea oferte din aceeași categorie sau poți contacta agentul pentru o oferta personalizată.
VEZI OFERTE SIMILARE
Apartament cu 4 camere, 86 mp, terasă de 30 mp și parcare inclusă, zona Zorilor

Apartament 5 camere, 100 mp, parter, pivniță 100 mp, zona Calvaria Mănăștur

Comision 0! Ray by Hexagon - 4 camere, 2 Nivele, 105 mp, 3 Bai, Terasa 45 mp
Linkuri rapide filtrate după cele mai căutate zone și numărul de camere
ID: BLITZ 116760AV
Cartier: ZorilorPreț/mp: 3.500 €
Actualizat: 15.05.2024
Zona: Golden TulipRata lunară: 1.674,85 €
Anunță-mă când scade prețul
Trimite oferta de preț
Nr. camere: 4
Suprafață utilă: 94 mp
Nr. băi: 3
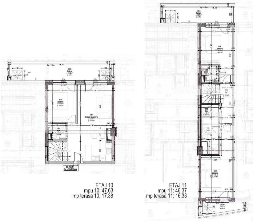
Etaj: 10 /14
Locuri de parcare: 1 , Subteran
Boxă la subsol: Nu
Tip compartimentare: Semidecomandat
Vechime apartament: Nou
Tip imobil: Bloc de apartamente
Dotări: Nemobilat
Anul construcției: 2023
Tip finisaj: Finisat
Materiale construcție: Beton, Cărămidă
Modalitate vânzare: Credit bancar, Cash
Link-uri utile
Linkuri rapide filtrate după cele mai căutate zone și numărul de camere