Apartament 5 camere, 100 mp, parter, pivniță 100 mp, zona Calvaria Mănăștur
Oferta accesata nu mai este disponibilă.
Poți vedea oferte din aceeași categorie sau poți contacta agentul pentru o oferta personalizată.
VEZI OFERTE SIMILARE
Apartament 5 camere, 100 mp, parter, pivniță 100 mp, zona Calvaria Mănăștur

Comision 0! Ray by Hexagon - 4 camere, 2 Nivele, 105 mp, 3 Bai, Terasa 45 mp
Linkuri rapide filtrate după cele mai căutate zone și numărul de camere
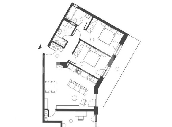
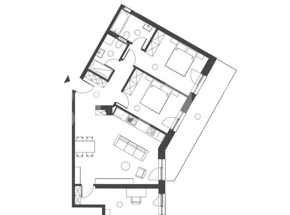
ID: BLITZ 175345AV
Cartier: SemicentralPreț/mp: 3.740 €
Actualizat: 17.02.2026
Rata lunară: 1.669,75 €
Anunță-mă când scade prețul
Trimite oferta de preț
Nr. camere: 4
Suprafață utilă: 87.7 mp
Nr. băi: 2
Etaj: 2 /6
Tip compartimentare: Semidecomandat
Vechime apartament: În construcție
Tip imobil: Bloc de apartamente
Dotări: Nemobilat
Anul construcției: 2025
Tip finisaj: Semifinisat
Link-uri utile
Linkuri rapide filtrate după cele mai căutate zone și numărul de camere