Apartament 4 camere, decomandat, 81 mp, zona Blocuri
Oferta accesata nu mai este disponibilă.
Poți vedea oferte din aceeași categorie sau poți contacta agentul pentru o oferta personalizată.
VEZI OFERTE SIMILARE
Apartament cu 4 camere, 66mp, 2 balcoane spatioase, panorama, zona Florilor
Linkuri rapide filtrate după cele mai căutate zone și numărul de camere
ID: BLITZ 35023AV
Cartier: ManasturPreț/mp: 1.231 €
Actualizat: 03.05.2019
Zona: Vivo (Polus Center)Rata lunară: 524,34 €
Anunță-mă când scade prețul
Trimite oferta de preț
Nr. camere: 4
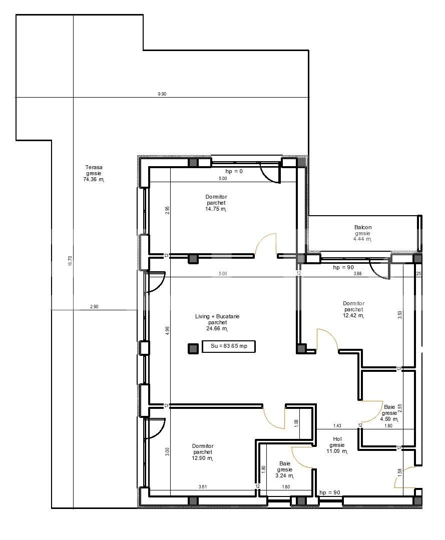
Suprafață utilă: 83.65 mp
Nr. băi: 2
Nr. balcoane: 1
Etaj: 5 /5
Boxă la subsol: Nu
Tip compartimentare: Semidecomandat
Vechime apartament: Nou
Tip imobil: Bloc de apartamente
Dotări: Nemobilat
Anul construcției: 2018
Tip finisaj: Semifinisat
Materiale construcție: Cărămidă
Modalitate vânzare: Credit bancar, Cash
Link-uri utile
Linkuri rapide filtrate după cele mai căutate zone și numărul de camere