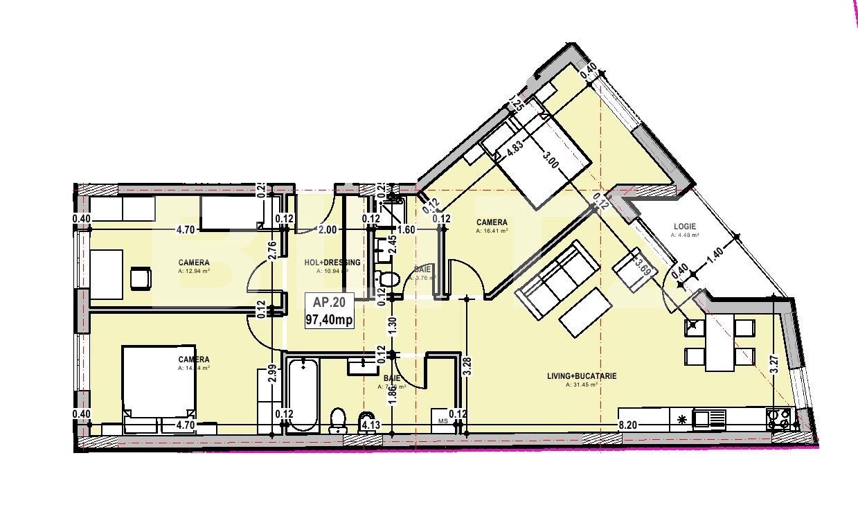
Apartament 4 camere, etaj intermediar, 2 băi, boxă,| G. Alexandrescu, Manastur
Oferta accesata nu mai este disponibilă.
Poți vedea oferte din aceeași categorie sau poți contacta agentul pentru o oferta personalizată.
VEZI OFERTE SIMILARE
Apartament 4 camere, etaj intermediar, 2 băi, boxă,| G. Alexandrescu, Manastur

Apartament cu 4 camere, renovat 2024, centrală nouă, boxă, zona BIG Mănăștur
Linkuri rapide filtrate după cele mai căutate zone și numărul de camere
ID: BLITZ 114139AV
Cartier: CentralPreț/mp: 2.138 €
Actualizat: 22.03.2024
Zona: DecebalRata lunară: 1.001,34 €
Anunță-mă când scade prețul
Trimite oferta de preț
Nr. camere: 4
Suprafață utilă: 92 mp
Nr. băi: 2
Nr. balcoane: 1
Etaj: 4 /6
Boxă la subsol: Da
Tip compartimentare: Semidecomandat
Vechime apartament: În construcție
Tip imobil: Bloc de apartamente
Dotări: Nemobilat
Anul construcției: 2024
Tip finisaj: Semifinisat
Materiale construcție: Beton, Cărămidă
Modalitate vânzare: Credit bancar, Cash
Link-uri utile
Linkuri rapide filtrate după cele mai căutate zone și numărul de camere