blitz logo
favorites

black arrow right Oferta accesata nu mai este disponibilă.

Poți vedea oferte din aceeași categorie sau poți contacta agentul pentru o oferta personalizată.

VEZI OFERTE SIMILARE

LINK-URI UTILE

Linkuri rapide filtrate după cele mai căutate zone și numărul de camere

Apartamente de vânzareApartamente de vânzare Bună ZiuaApartamente de vânzare 4 camereApartamente de vânzare Bună Ziua 4 camere
Apartament de vânzare 4 camere Bună Ziua - 15375AV | BLITZ Cluj-Napoca | Poza1
Apartament de vânzare 4 camere Bună Ziua - 15375AV | BLITZ Cluj-Napoca | Poza1
Apartament de vânzare 4 camere Bună Ziua - 15375AV | BLITZ Cluj-Napoca | Poza1

Vanzare apartament 4 camere, 102,20 mp, imobil nou, zona strazii Buna Ziua

ID: BLITZ 15375AV

Cartier: Bună Ziua

Preț/mp: 1.123 €

Actualizat: 17.05.2016

Rata lunară: 584,52

Agent

    Acest anunț este verificat de către agent

    Te interesează ofertă? Programează o vizionare!
    Vă rugăm să completați chenarul cu informațiile cerute pentru a continua

    114.821

    Trimite ofertă de preț

    Acest anunț este verificat de către agent

      €

    Nr. camere: 4

    Suprafață utilă: 102.2 mp

    Nr. băi: 2

    Etaj: 4 /4

    Tip compartimentare: Semidecomandat

    Tip imobil: Bloc de apartamente

    Dotări: Mobilat/utilat

    Anul construcției: 2016

    Tip finisaj: Finisat

    Materiale construcție: Cărămidă

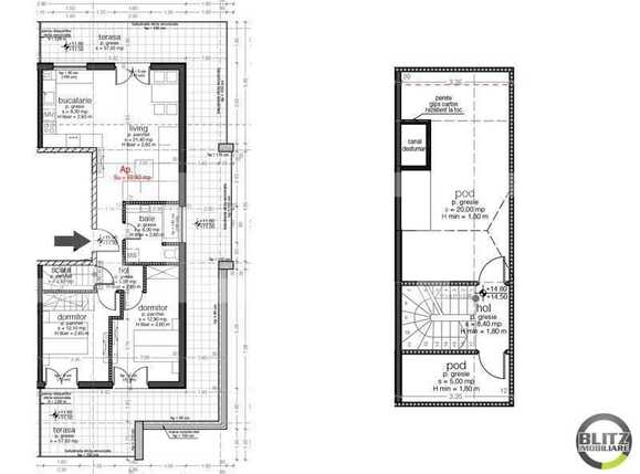
    Blitz Imobiliare propune spre vanzare un apartament situat in zona strazii Buna Ziua.
    Apartamentul este dispus pe 2 nivele, respectiv etajul 4 si mansarda unui imobil nou, constructie finalizata in anul 2016 si beneficiaza de izolatie termica exterioara.
    Are o suprafata utila de 102,20 mp si este compartimentat dupa cum urmeaza:
    Etaj 4: living si bucatarie open space, 2 dormitoare, 2 bai, hol si 1 terasa cu o suprafata de 58 mp
    Mansarda: open space.
    Apartamentul este dotat cu centrala termica proprie, usa metalica la intrare si geamuri termopan cu tamplarie din PVC.
    Se preda la stadiul de semifinisat, cu sapa autonivelanta si peretii gletuiti.
    Se poate achizitiona doar impreuna cu o boxa la subsol si un garaj, acestea avand pretul de 7000 de euro.

    Agent

    Parerea agentului: Un apartament cu o suprafata utila generoasa si bine compartimentata, dispusa pe doua nivele.

    Link-uri utile

    Linkuri rapide filtrate după cele mai căutate zone și numărul de camere

    black friday
    Sună acum
    Inchide
    X

    Te interesează apartamente de vânzare în Cluj-Napoca?

    Lasă-ne datele tale de contact şi te vom consilia în alegerea proprietăţii potrivite!

    Inchide
    X

    Te interesează apartamente de vânzare în Cluj-Napoca?

    Lasă-ne datele tale de contact şi te vom consilia în alegerea proprietăţii potrivite!