Apartament cu 3 camere, comision 0%, Academia de Muzica
Oferta accesata nu mai este disponibilă.
Poți vedea oferte din aceeași categorie sau poți contacta agentul pentru o oferta personalizată.
VEZI OFERTE SIMILARE
Apartament 4 camere, etaj intermediar, 2 băi, boxă,| G. Alexandrescu, Manastur

DE VÂNZARE | 3 camere decomandate | Zorilor |65 mp utili | Priveliște panoramica

DE VÂNZARE | Apartament 3 camere | Zorilor | 68 mp + balcoane | Zonă excelentă
Linkuri rapide filtrate după cele mai căutate zone și numărul de camere
Anunță-mă când scade prețul
Trimite oferta de preț
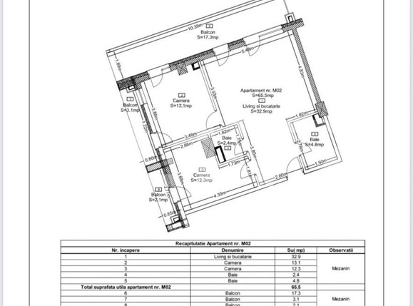
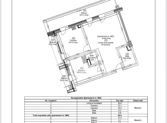
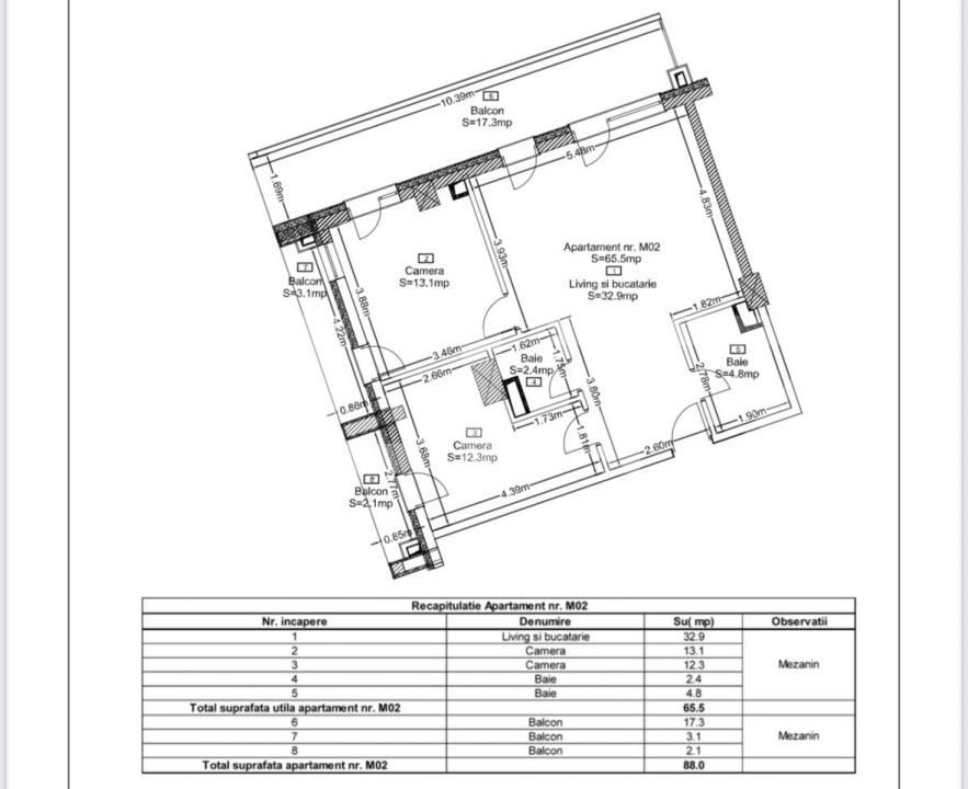
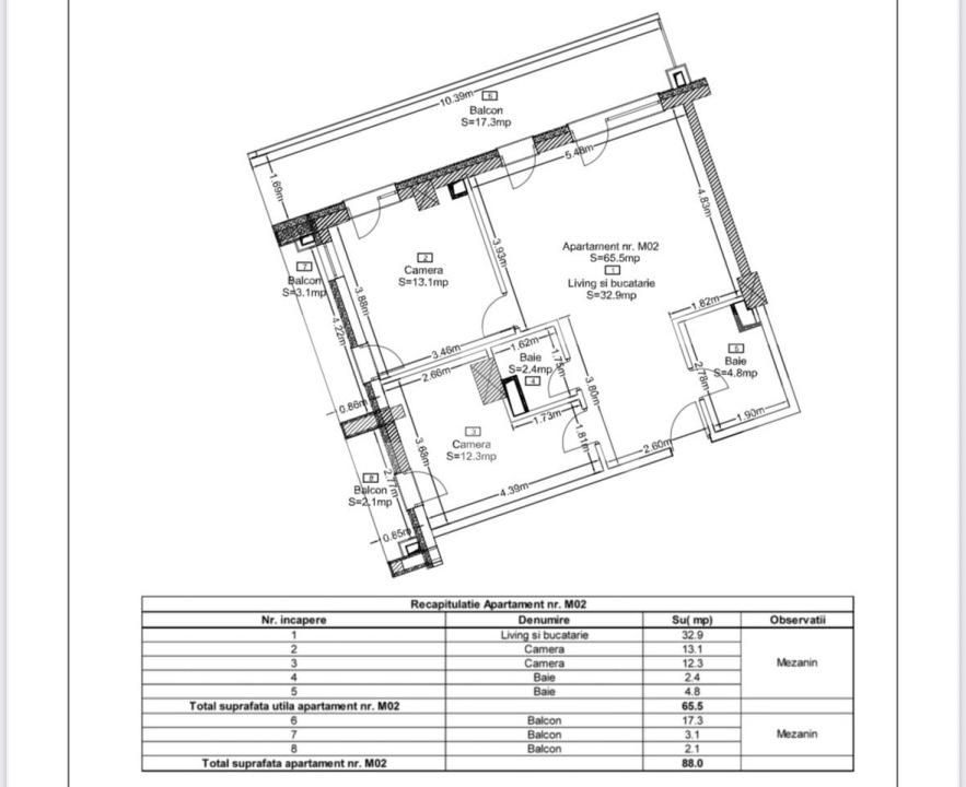
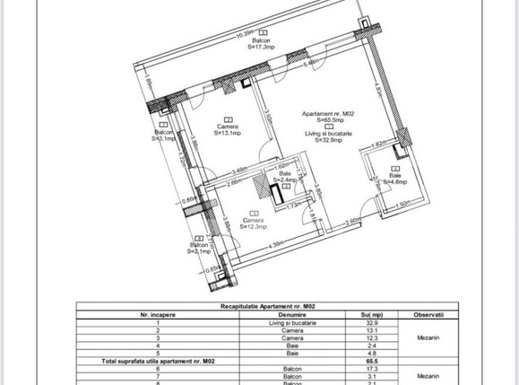
Nr. camere: 3
Suprafață utilă: 65.5 mp
Nr. băi: 2
Nr. balcoane: 3
Etaj: 1 /15
Tip compartimentare: Decomandat
Vechime apartament: Nou
Tip imobil: Bloc de apartamente
Dotări: Nemobilat
Anul construcției: 2021
Tip finisaj: Semifinisat
Link-uri utile
Linkuri rapide filtrate după cele mai căutate zone și numărul de camere