Apartament de vanzare, cu 3 camere, 64 mp, bloc nou, zona Sala Sporturilor
Anunță-mă când scade prețul
Trimite oferta de preț
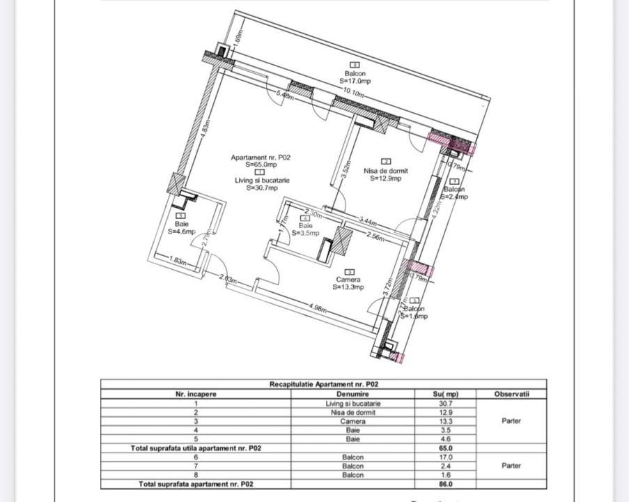
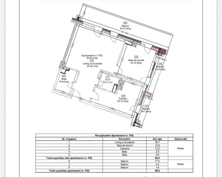
Nr. camere: 3
Suprafață utilă: 65 mp
Nr. băi: 2
Nr. balcoane: 3
Etaj: Parter /15
Tip compartimentare: Decomandat
Vechime apartament: Nou
Tip imobil: Bloc de apartamente
Dotări: Nemobilat
Anul construcției: 2021
Tip finisaj: Semifinisat
Evoluție Indice Blitz:
Apartament de vanzare, cu 3 camere, 64 mp, bloc nou, zona Sala Sporturilor
Locuința viitorului tău | 3 camere 65,48 mp + Terasă 19,27 mp | Zonă de Top Cluj
Apartament cu 3 dormitoare, 2 bai, boxa mare, parter inalt, balcon, Manastur
Link-uri utile
Linkuri rapide filtrate după cele mai căutate zone și numărul de camere


