blitz logo
favorites

black arrow right Oferta accesata nu mai este disponibilă.

Poți vedea oferte din aceeași categorie sau poți contacta agentul pentru o oferta personalizată.

VEZI OFERTE SIMILARE

LINK-URI UTILE

Linkuri rapide filtrate după cele mai căutate zone și numărul de camere

Apartamente de vânzareApartamente de vânzare ZorilorApartamente de vânzare 3 camereApartamente de vânzare Zorilor 3 camere
Apartament de vânzare 3 camere Zorilor - 171624AV | BLITZ Cluj-Napoca | Poza1
Apartament de vânzare 3 camere Zorilor - 171624AV | BLITZ Cluj-Napoca | Poza1
Apartament de vânzare 3 camere Zorilor - 171624AV | BLITZ Cluj-Napoca | Poza1

Apartament cu 3 camere, 65,mp, Ansamblu Rezidential, Zorilor

ID: BLITZ 171624AV

Cartier: Zorilor

Preț/mp: 3.173 €

Actualizat: 04.06.2025

Rata lunară: 1.050,02

Agent

    Te interesează ofertă? Programează o vizionare!
    Vă rugăm să completați chenarul cu informațiile cerute pentru a continua

    206.261

    Trimite ofertă de preț

    Acest anunț este verificat de către agent

      €

    Nr. camere: 3

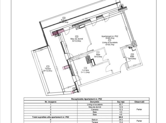
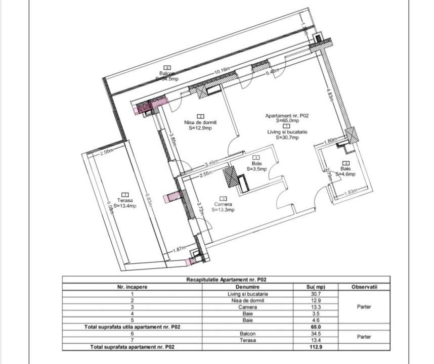
    Suprafață utilă: 65 mp

    Nr. băi: 2

    Nr. balcoane: 1

    Etaj: Parter /15

    Tip compartimentare: Decomandat

    Vechime apartament: Nou

    Tip imobil: Bloc de apartamente

    Dotări: Nemobilat

    Anul construcției: Inainte de 1990

    Tip finisaj: Semifinisat

    Apartament semifinisat cu 3 camere, în ansamblu rezidențial nou – Zorilor, parter

    Vă propunem spre vânzare un apartament spațios, situat într-un ansamblu rezidențial nou din cartierul Zorilor, una dintre cele mai căutate zone ale orașului.

    📐 Suprafață utilă generoasă
    Apartamentul este poziționat la parter și este compartimentat eficient, ideal pentru o familie sau pentru investiție. Acesta este semifinisat, oferindu-vă libertatea de a-l amenaja după gustul propriu.

    🏡 Compartimentare:
    • Living cu bucătărie open space – zonă de zi luminoasă și aerisită
    • 1 dormitor confortabil si o nisa de dormit
    • 2 băi
    • 1 balcon si 1 terasa – perfecte pentru relaxare

    🔧 Stadiu de predare:
    • Semifinisat: pereți tencuiți și gletuiți, sapa turnată, centrală termică proprie, instalații trase pe poziții, uși la intrare montate

    🏙️ Ansamblu modern:
    Imobilul face parte dintr-un complex rezidențial modern, cu acces securizat, spații verzi amenajate și locuri de parcare disponibile.

    📍 Locație excelentă
    Zona Zorilor oferă acces rapid către centrul orașului, spitale, universități, magazine și mijloace de transport în comun.
    Cod ofertă / ID BLITZ: P146459

    Agent

    Link-uri utile

    Linkuri rapide filtrate după cele mai căutate zone și numărul de camere

    black friday
    Sună acumScrie mesaj
    Inchide
    X

    Te interesează apartamente de vânzare în Cluj-Napoca?

    Lasă-ne datele tale de contact şi te vom consilia în alegerea proprietăţii potrivite!