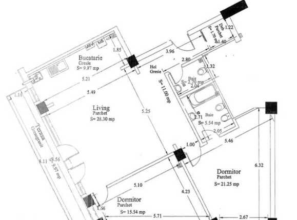
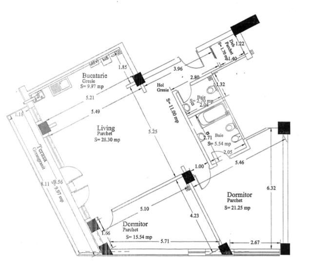
Apartament nou, semidecomandat, 3 camere, parcare subterana, zona Terra
Oferta accesata nu mai este disponibilă.
Poți vedea oferte din aceeași categorie sau poți contacta agentul pentru o oferta personalizată.
VEZI OFERTE SIMILARELinkuri rapide filtrate după cele mai căutate zone și numărul de camere
ID: BLITZ 24118AV
Cartier: MarastiPreț/mp: 1.150 €
Actualizat: 06.05.2019
Zona: P-ta 1 MaiRata lunară: 585,43 €
Anunță-mă când scade prețul
Trimite oferta de preț
Nr. camere: 3
Suprafață utilă: 100 mp
Nr. băi: 2
Etaj: 7 /8
Garaj: 1
Boxă la subsol: Nu
Tip compartimentare: Semidecomandat
Vechime apartament: Nou
Tip imobil: Bloc de apartamente
Dotări: Mobilat/utilat
Anul construcției: 2009
Tip finisaj: Finisat
Materiale construcție: Cărămidă
Modalitate vânzare: Credit bancar, Cash
Link-uri utile
Linkuri rapide filtrate după cele mai căutate zone și numărul de camere