OPORTUNITATE DE INVESTITIE , Apartament 3 camere, Panorama superba, Bloc nou
Oferta accesata nu mai este disponibilă.
Poți vedea oferte din aceeași categorie sau poți contacta agentul pentru o oferta personalizată.
VEZI OFERTE SIMILARE
OPORTUNITATE DE INVESTITIE , Apartament 3 camere, Panorama superba, Bloc nou

Apartament semidecomandat cu 3 camere, vedere la padure, parcare inclusa, Teilor
Linkuri rapide filtrate după cele mai căutate zone și numărul de camere
Anunță-mă când scade prețul
Trimite oferta de preț
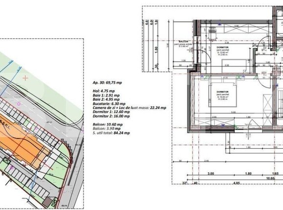
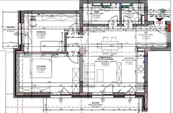
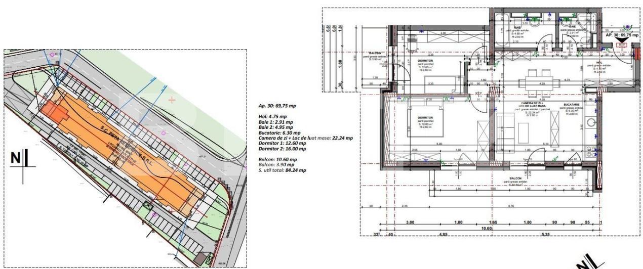
Nr. camere: 3
Suprafață utilă: 69.75 mp
Nr. băi: 2
Nr. balcoane: 2
Etaj: 2 /4
Tip compartimentare: Semidecomandat
Vechime apartament: Nou
Tip imobil: Bloc de apartamente
Dotări: Nemobilat
Anul construcției: 2024
Tip finisaj: Semifinisat
Link-uri utile
Linkuri rapide filtrate după cele mai căutate zone și numărul de camere