Apartament cu 4 camere decomandate, etaj 2, 77 mp, Mănăștur – zonă excelentă
Oferta accesata nu mai este disponibilă.
Poți vedea oferte din aceeași categorie sau poți contacta agentul pentru o oferta personalizată.
VEZI OFERTE SIMILARE
Apartament cu 4 camere decomandate, etaj 2, 77 mp, Mănăștur – zonă excelentă

Apartament 70 mp, 3 camere | Marasti - Zonă cu potențial major de dezvoltare
Linkuri rapide filtrate după cele mai căutate zone și numărul de camere
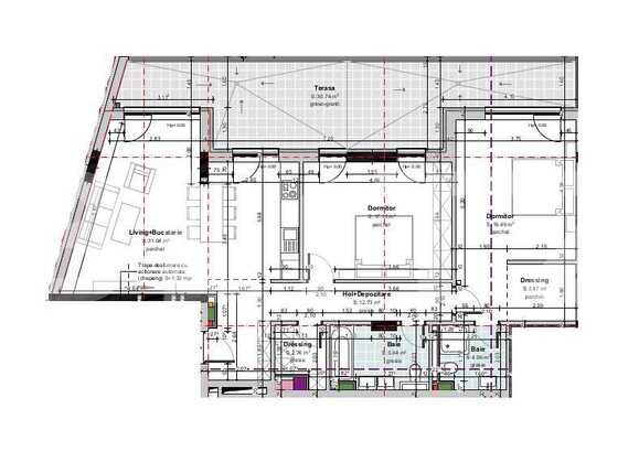
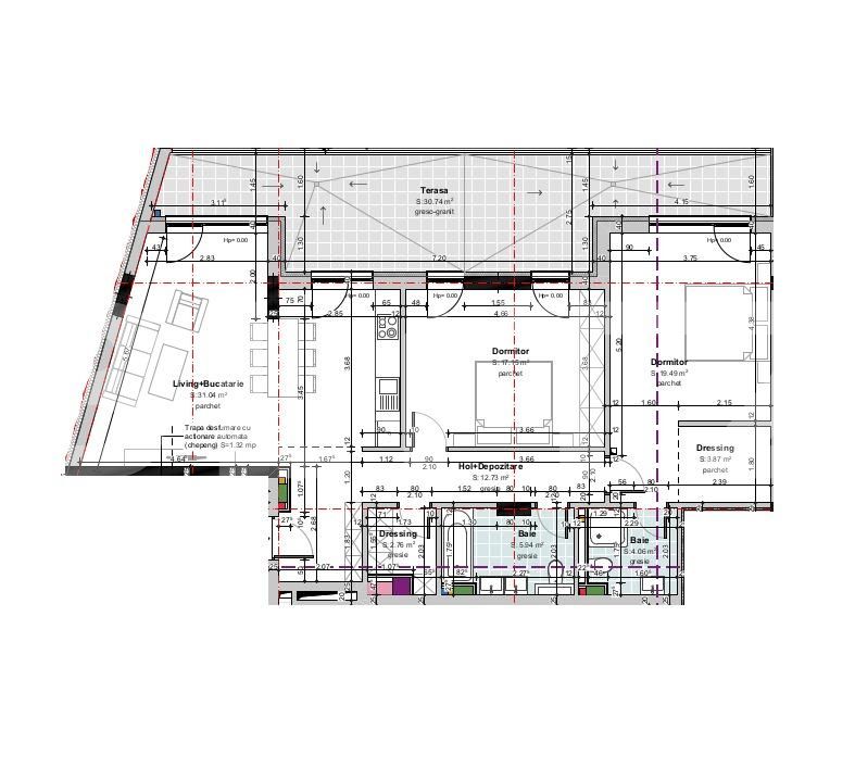
ID: BLITZ 47024AV
Cartier: GheorgheniPreț/mp: 2.000 €
Actualizat: 06.07.2020
Zona: BrancusiRata lunară: 988,11 €
Anunță-mă când scade prețul
Trimite oferta de preț
Nr. camere: 3
Suprafață utilă: 97.05 mp
Nr. băi: 2
Etaj: 6 /6
Boxă la subsol: Nu
Tip compartimentare: Semidecomandat
Vechime apartament: În construcție
Tip imobil: Bloc de apartamente
Dotări: Nemobilat
Anul construcției: 2021
Tip finisaj: Semifinisat
Materiale construcție: Cărămidă
Modalitate vânzare: Credit bancar, Cash
Link-uri utile
Linkuri rapide filtrate după cele mai căutate zone și numărul de camere