Apartamente de 1-3 camere, 37-60 mp, posibilitate garaj, zona Terra
Oferta accesata nu mai este disponibilă.
Poți vedea oferte din aceeași categorie sau poți contacta agentul pentru o oferta personalizată.
VEZI OFERTE SIMILARELinkuri rapide filtrate după cele mai căutate zone și numărul de camere
ID: BLITZ 86818AV
Cartier: FloreştiPreț/mp: 1.448 €
Actualizat: 20.12.2022
Zona: Fara zonaRata lunară: 479,14 €
Anunță-mă când scade prețul
Trimite oferta de preț
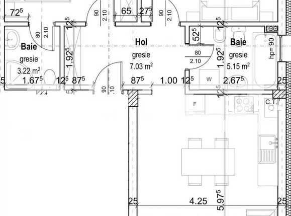
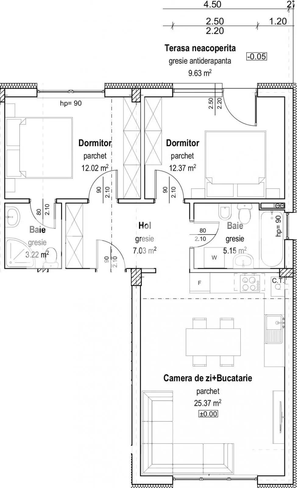
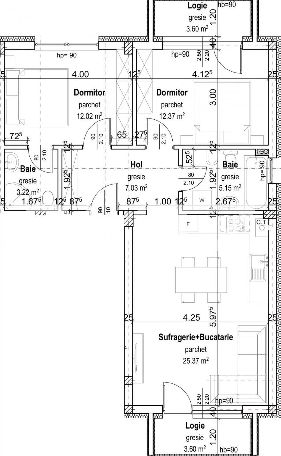
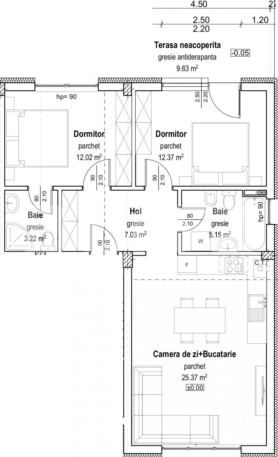
Nr. camere: 3
Suprafață utilă: 65 mp
Nr. băi: 2
Etaj: Parter /2
Locuri de parcare: 1
Boxă la subsol: Nu
Tip compartimentare: Semidecomandat
Vechime apartament: În construcție
Tip imobil: Bloc de apartamente
Dotări: Nemobilat
Anul construcției: 2022
Tip finisaj: Semifinisat
Materiale construcție: Beton, Cărămidă
Modalitate vânzare: Credit bancar, Cash
Link-uri utile
Linkuri rapide filtrate după cele mai căutate zone și numărul de camere