blitz logo
favorites

black arrow right Oferta accesata nu mai este disponibilă.

Poți vedea oferte din aceeași categorie sau poți contacta agentul pentru o oferta personalizată.

VEZI OFERTE SIMILARE

LINK-URI UTILE

Linkuri rapide filtrate după cele mai căutate zone și numărul de camere

Apartamente de vânzareApartamente de vânzare FloreştiApartamente de vânzare 3 camereApartamente de vânzare Floreşti 3 camereApartamente de vânzare Floreşti, zona Eroilor
Apartament de vânzare 3 camere Floreşti - 58934AV | BLITZ Cluj-Napoca | Poza1
Apartament de vânzare 3 camere Floreşti - 58934AV | BLITZ Cluj-Napoca | Poza1
Apartament de vânzare 3 camere Floreşti - 58934AV | BLITZ Cluj-Napoca | Poza1

Apartament 3 camere, Terasa, semifinisat! Zona strazii Eroilor!

ID: BLITZ 58934AV

Cartier: Floreşti

Preț/mp: 867 €

Actualizat: 11.01.2021

Zona: Eroilor

Rata lunară: 264,72

Agent

    Acest anunț este verificat de către agent

    Te interesează ofertă? Programează o vizionare!
    Vă rugăm să completați chenarul cu informațiile cerute pentru a continua

    52.000

    Trimite ofertă de preț

    Acest anunț este verificat de către agent

      €

    Nr. camere: 3

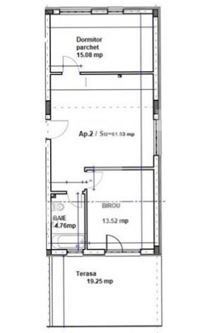
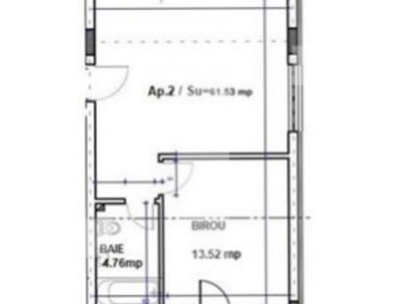
    Suprafață utilă: 60 mp

    Nr. băi: 1

    Etaj: Parter /4

    Boxă la subsol: Nu

    Tip compartimentare: Semidecomandat

    Vechime apartament: Nou

    Tip imobil: Bloc de apartamente

    Dotări: Nemobilat

    Anul construcției: 2020

    Tip finisaj: Semifinisat

    Materiale construcție: Beton, Cărămidă

    Modalitate vânzare: În rate la constructor, Credit bancar, Cash

    Blitz ofera spre vanzare un apartament cu 3 camere, situat in intr-un ansamblu rezidential in zona Eroilor, din Floresti. Apartamentul este pozitionat la parterul unui imobil nou dotat cu lift iar regimul de inaltime este D+P+3E+ER. Suprafata utila de care dispune este de 59.63 mp, iar compartimentarea decomandata se prezinta astfel: bucataria open space cu living, hol, 2 dormitoare, baie si terasa de 20 mp. Se ofera spre vanzare la stadiul de semifinisat, cu sapa autonivelanta, instalatii trase la pozitie, peretii gletuiti, centrala termica + calorifere, geamuri termopan cu tamplarie PVC, usa metalica antiefractie la intrare, interfon cu touch screen + camera video, contoare de gaz, apa si curent.

    Ansamblul este clasificat in clasa energetica A.
    Optional se poate achizitiona un loc de parcare: suprateran 2600 euro, iar subteran 3700 euro.

    Termenul de finalizare este Decembrie 2020.

    Agent

    Link-uri utile

    Linkuri rapide filtrate după cele mai căutate zone și numărul de camere

    black friday
    Sună acum
    Inchide
    X

    Te interesează apartamente de vânzare în Cluj-Napoca?

    Lasă-ne datele tale de contact şi te vom consilia în alegerea proprietăţii potrivite!

    Inchide
    X

    Te interesează apartamente de vânzare în Cluj-Napoca?

    Lasă-ne datele tale de contact şi te vom consilia în alegerea proprietăţii potrivite!