APrtament cu 3 camere, parcare inclusa in pret, zona Somesului
ID: BLITZ 180510AV
Cartier: FloreştiPreț/mp: 1.669 €
Actualizat: 02.03.2026
Zona: TerraRata lunară: 497,36 €
Anunță-mă când scade prețul
Trimite oferta de preț
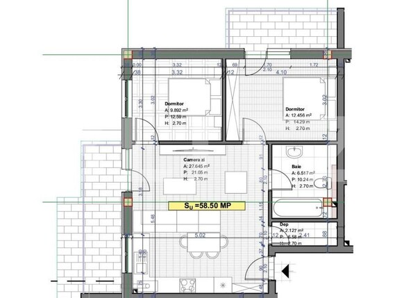
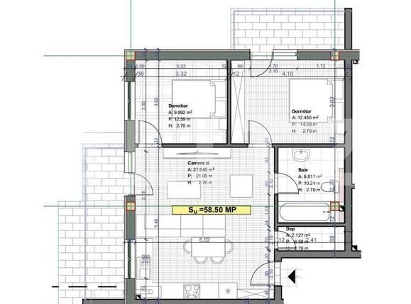
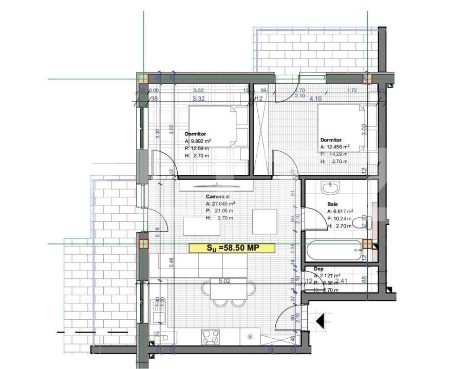
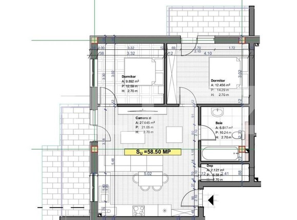
Nr. camere: 3
Suprafață utilă: 58.53 mp
Nr. băi: 1
Etaj: 3 /3
Locuri de parcare: 1
Tip compartimentare: Semidecomandat
Vechime apartament: Nou
Tip imobil: Bloc de apartamente
Dotări: Nemobilat
Anul construcției: 2021
Tip finisaj: Semifinisat
Evoluție Indice Blitz:
EXCLUSIV! Apartament 3 camere, 60 mp, intermediar, parcare, Zona Tineretului !
Apartament 3 camere, decomandate | Etaj 2/4 | Garaj | Zonă verde și liniștită !
Link-uri utile
Linkuri rapide filtrate după cele mai căutate zone și numărul de camere

