Apartament 3 camere, 59 mp, mobilat si utilat, parcare, zona VIVO
Oferta accesata nu mai este disponibilă.
Poți vedea oferte din aceeași categorie sau poți contacta agentul pentru o oferta personalizată.
VEZI OFERTE SIMILARE
Apartament cu 3 camere, 78 mp cu 2 balcoane si 2 parcari ,in zona Somesului

Apartament modern cu 3 camere, terasă spectaculoasă de 31 mp – zona Vivo Mall
Linkuri rapide filtrate după cele mai căutate zone și numărul de camere
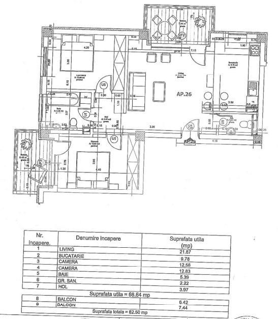
ID: BLITZ 86188AV
Cartier: Dambul RotundPreț/mp: 2.318 €
Actualizat: 09.08.2022
Zona: MaramuresuluiRata lunară: 811,97 €
Anunță-mă când scade prețul
Trimite oferta de preț
Nr. camere: 3
Suprafață utilă: 68.8 mp
Nr. băi: 2
Nr. balcoane: 2
Etaj: 5 /5
Locuri de parcare: 1
Boxă la subsol: Nu
Tip compartimentare: Semidecomandat
Vechime apartament: Nou
Tip imobil: Bloc de apartamente
Dotări: Nemobilat
Anul construcției: 2017
Tip finisaj: Modern/lux
Materiale construcție: Beton, Cărămidă
Modalitate vânzare: Credit bancar, Cash
Link-uri utile
Linkuri rapide filtrate după cele mai căutate zone și numărul de camere