Pachet complet! Apartament spatios 68mp, cu 3 camere, dressing, garaj si gradina
Oferta accesata nu mai este disponibilă.
Poți vedea oferte din aceeași categorie sau poți contacta agentul pentru o oferta personalizată.
VEZI OFERTE SIMILARE
Pachet complet! Apartament spatios 68mp, cu 3 camere, dressing, garaj si gradina

Apartament la mansarda, cu 3 camere, 60 de mp, in zona Teilor, parcare cu CF
Linkuri rapide filtrate după cele mai căutate zone și numărul de camere
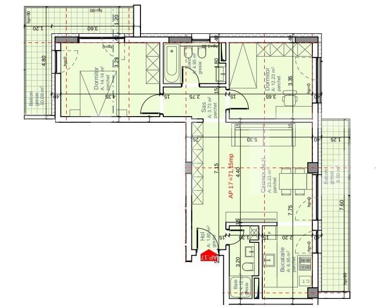
ID: BLITZ 57153AV
Cartier: Bună ZiuaPreț/mp: 1.601 €
Actualizat: 05.02.2021
Zona: LidlRata lunară: 582,89 €
Anunță-mă când scade prețul
Trimite oferta de preț
Nr. camere: 3
Suprafață utilă: 71.5 mp
Nr. băi: 2
Nr. balcoane: 2
Etaj: 3 /3
Locuri de parcare: 1
Boxă la subsol: Nu
Tip compartimentare: Semidecomandat
Vechime apartament: Nou
Tip imobil: Bloc de apartamente
Dotări: Nemobilat
Anul construcției: 2020
Tip finisaj: Semifinisat
Materiale construcție: Beton, Cărămidă
Modalitate vânzare: Credit bancar, Cash
Link-uri utile
Linkuri rapide filtrate după cele mai căutate zone și numărul de camere