Apartament 3 camere, semidecomandat, 54 mp, balcon, orientare sudică, Grigorescu
Oferta accesata nu mai este disponibilă.
Poți vedea oferte din aceeași categorie sau poți contacta agentul pentru o oferta personalizată.
VEZI OFERTE SIMILARE
Apartament 3 camere, semidecomandat, 54 mp, balcon, orientare sudică, Grigorescu

Apartament la cheie, totul nou, 70 mp, 2 bai, 2 balcoane, lift, pacare subterana
Linkuri rapide filtrate după cele mai căutate zone și numărul de camere
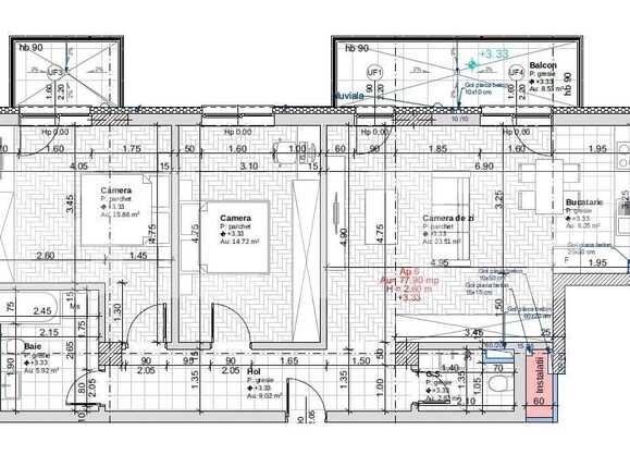
ID: BLITZ 74131AV
Cartier: BorhanciPreț/mp: 2.128 €
Actualizat: 21.06.2022
Zona: Calea BorhanciuluiRata lunară: 845,06 €
Anunță-mă când scade prețul
Trimite oferta de preț
Nr. camere: 3
Suprafață utilă: 78 mp
Nr. băi: 2
Nr. balcoane: 2
Etaj: 1 /4
Locuri de parcare: 1
Boxă la subsol: Nu
Tip compartimentare: Semidecomandat
Vechime apartament: Nou
Tip imobil: Bloc de apartamente
Dotări: Nemobilat
Anul construcției: 2022
Tip finisaj: Semifinisat
Materiale construcție: Beton, Cărămidă
Modalitate vânzare: Credit bancar, Cash
Link-uri utile
Linkuri rapide filtrate după cele mai căutate zone și numărul de camere