blitz logo
favorites

black arrow right Oferta accesata nu mai este disponibilă.

Poți vedea oferte din aceeași categorie sau poți contacta agentul pentru o oferta personalizată.

VEZI OFERTE SIMILARE

Oferte similare

LINK-URI UTILE

Linkuri rapide filtrate după cele mai căutate zone și numărul de camere

Apartamente de vânzareApartamente de vânzare BaciuApartamente de vânzare 3 camereApartamente de vânzare Baciu 3 camereApartamente de vânzare Baciu, zona Petrom
Apartament de vânzare 3 camere Baciu - 40961AV | BLITZ Cluj-Napoca | Poza1
Apartament de vânzare 3 camere Baciu - 40961AV | BLITZ Cluj-Napoca | Poza1
Apartament de vânzare 3 camere Baciu - 40961AV | BLITZ Cluj-Napoca | Poza1

3 camere, etaj intermediar, semifinisat, zona Petrom

ID: BLITZ 40961AV

Cartier: Baciu

Preț/mp: 940 €

Actualizat: 01.03.2021

Zona: Petrom

Rata lunară: 274,70

Agent

Dragos Tarta

Expert Broker Partner

Acest anunț este verificat de către agent

Te interesează ofertă? Programează o vizionare!
Vă rugăm să completați chenarul cu informațiile cerute pentru a continua

53.960

Trimite ofertă de preț

Acest anunț este verificat de către agent

  €

Nr. camere: 3

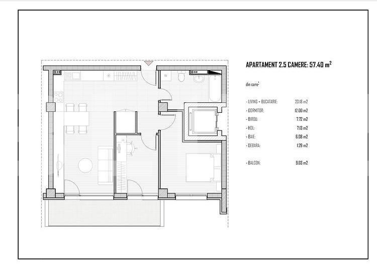
Suprafață utilă: 57.4 mp

Nr. băi: 1

Nr. balcoane: 1

Etaj: 2 /4

Boxă la subsol: Nu

Tip compartimentare: Semidecomandat

Vechime apartament: În construcție

Tip imobil: Bloc de apartamente

Dotări: Nemobilat

Anul construcției: 2020

Tip finisaj: Semifinisat

Materiale construcție: Beton, Cărămidă

Modalitate vânzare: Credit bancar, Cash

Blitz ofera spre vanzare apartament cu 3 camere, 56.80 mp, situat in ansamblu rezidential din zona Petrom, Baciu.
Compartimentarea apartamentului este urmatoarea: Living open space cu bucatarie, 2 dormitoare, un dressing, o baie, un hol si un balcon.
Proiectul este bine conectat prin mijloacele de transport in comun aflate in apropiere, la 5 minute de mers pe jos, precum si alte puncte de interes.
Ansamblul dispune de apartamente cu 2, 3 si 4 camere care se vor preda semifinisate, cu sapa autonivelanta, un rand de glet, usa metalica la intrare, ferestre termopan cu 7 camere, instalatii trase pe pozitie, centrala termica prin condensare si calorifere incluse.

Se poate opta si pentru loc de parcare la pretul de 2500 euro parcare supraterana si 5000 euro parcare subterana.

Termen de finalizare Decembrie 2021.
Pretul afisat este valabil pentru plata cash, 950 €/mp.
Pentru avans de minim 15% pretul pe mp este de 1200€/mp.

Agent

Dragos Tarta

Expert Broker Partner

Apartament situat intr-o zona in continua dezvoltare cu acces facil catre zonele centrale, mijloace de transport in comun in apropiere, magazine, restaurante si banci. Ideal atat ca si investitie cat si pentru o familie sau un cuplu.

Link-uri utile

Linkuri rapide filtrate după cele mai căutate zone și numărul de camere

black friday
Sună acumScrie mesaj
Inchide
X

Te interesează apartamente de vânzare în Cluj-Napoca?

Lasă-ne datele tale de contact şi te vom consilia în alegerea proprietăţii potrivite!