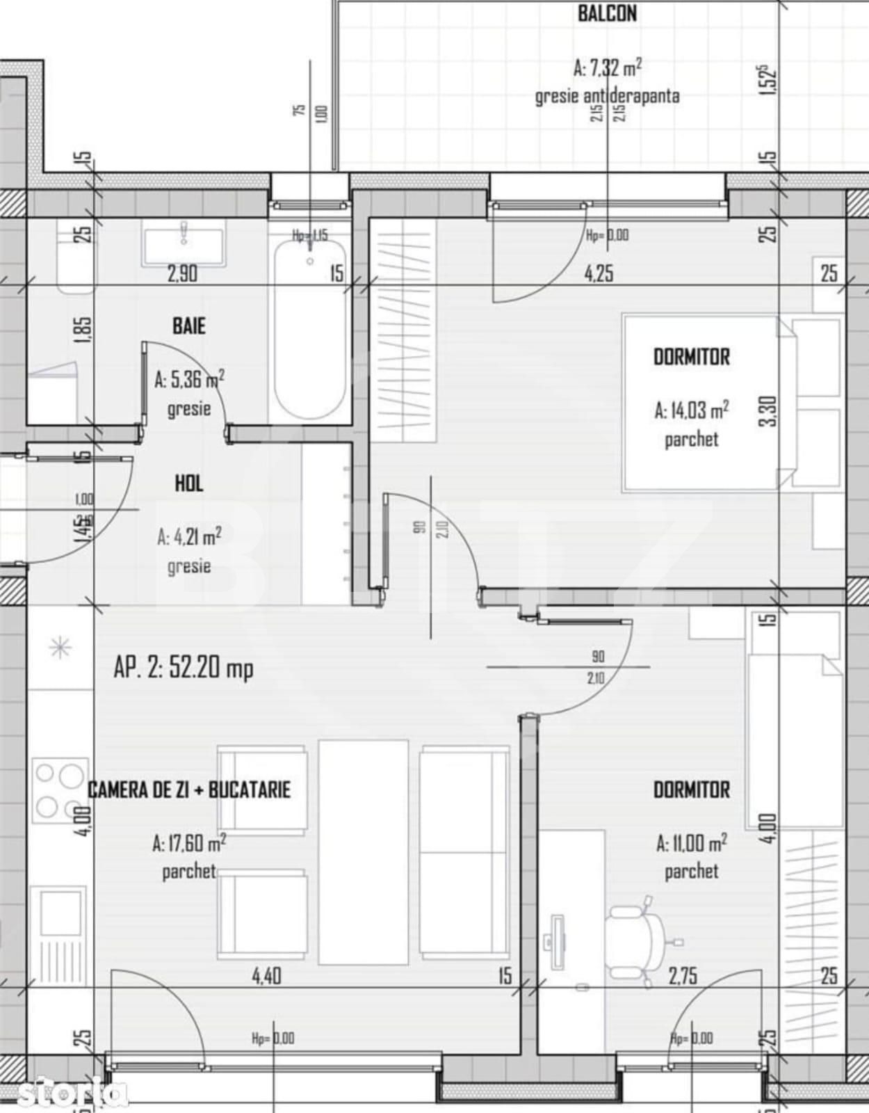
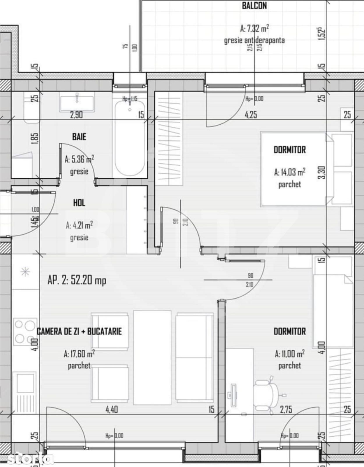
Apartament 3 camere, 52 mp, decomandat, cu parcare
Oferta accesata nu mai este disponibilă.
Poți vedea oferte din aceeași categorie sau poți contacta agentul pentru o oferta personalizată.
VEZI OFERTE SIMILARELinkuri rapide filtrate după cele mai căutate zone și numărul de camere
ID: BLITZ 118579AV
Cartier: BaciuPreț/mp: 1.300 €
Actualizat: 08.01.2024
Zona: Calea BaciuluiRata lunară: 345,46 €
Anunță-mă când scade prețul
Trimite oferta de preț
Nr. camere: 3
Suprafață utilă: 52.2 mp
Nr. băi: 1
Nr. balcoane: 1
Etaj: Parter /2
Locuri de parcare: 1
Boxă la subsol: Da
Tip compartimentare: Semidecomandat
Vechime apartament: În construcție
Tip imobil: Bloc de apartamente
Dotări: Nemobilat
Anul construcției: 2023
Tip finisaj: Semifinisat
Materiale construcție: Beton, Cărămidă
Modalitate vânzare: Credit bancar, Cash
Link-uri utile
Linkuri rapide filtrate după cele mai căutate zone și numărul de camere