Apartament cu 3 camere, 78 mp cu 2 balcoane si 2 parcari ,in zona Somesului
Anunță-mă când scade prețul
Trimite oferta de preț
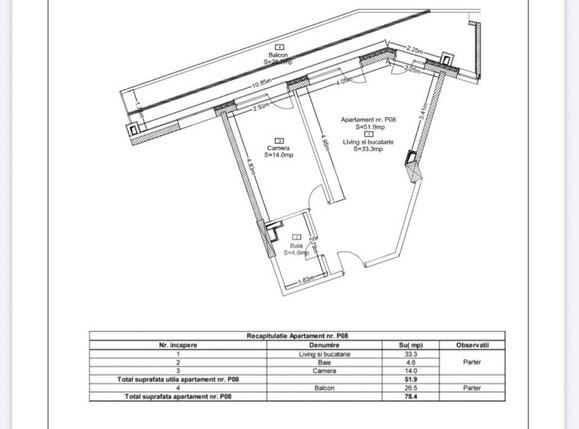
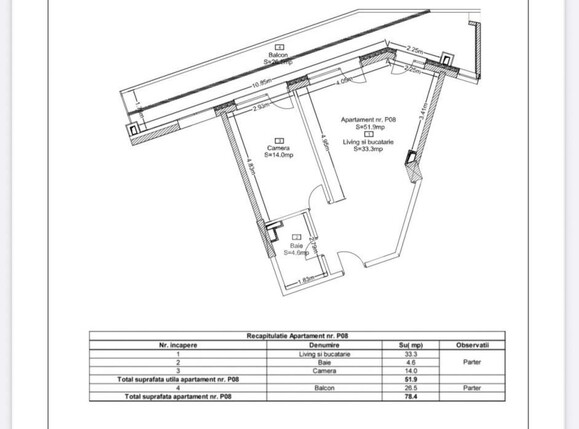
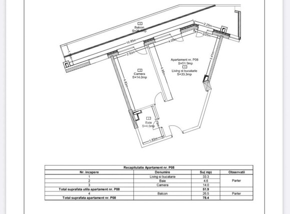
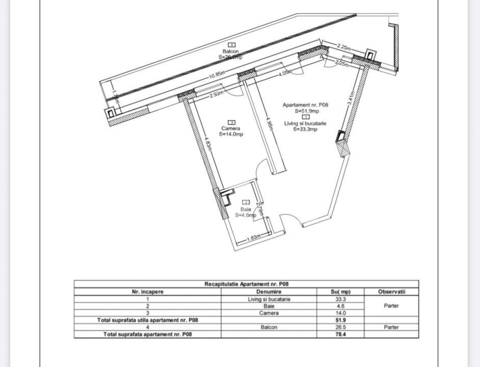
Nr. camere: 2
Suprafață utilă: 51.9 mp
Nr. băi: 1
Nr. balcoane: 1
Etaj: Parter /15
Tip compartimentare: Decomandat
Vechime apartament: Nou
Tip imobil: Bloc de apartamente
Dotări: Nemobilat
Anul construcției: 2021
Tip finisaj: Semifinisat
Evoluție Indice Blitz:
Apartament cu 3 camere, 78 mp cu 2 balcoane si 2 parcari ,in zona Somesului
Apartament 2 camere renovat, 50 mp utili, mobilat, ideal investiție, Grigorescu
Link-uri utile
Linkuri rapide filtrate după cele mai căutate zone și numărul de camere

