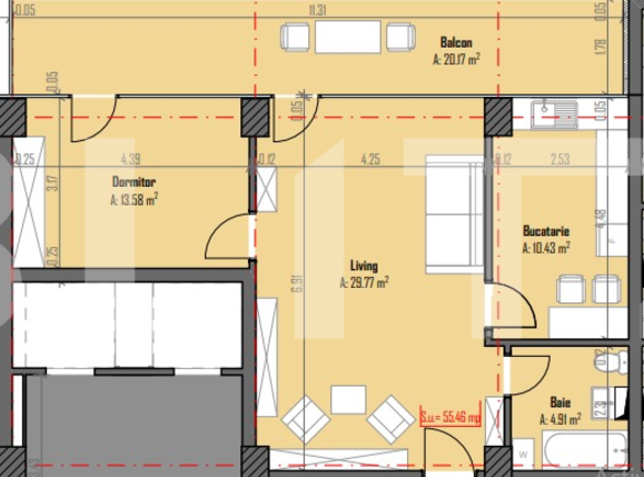
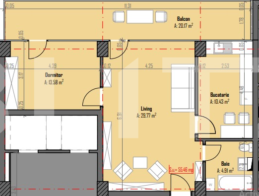
Apartament 2 camere, 38 mp, Beta Residence
Oferta accesata nu mai este disponibilă.
Poți vedea oferte din aceeași categorie sau poți contacta agentul pentru o oferta personalizată.
VEZI OFERTE SIMILARE
Apartament semidecomandat cu 3 camere, vedere la padure, parcare inclusa, Teilor

Apartament la cheie, lift, parcare subterana, terasa de 10 mp, zona Eroilor
Linkuri rapide filtrate după cele mai căutate zone și numărul de camere
ID: BLITZ 67991AV
Cartier: SomeseniPreț/mp: 1.670 €
Actualizat: 09.11.2021
Zona: Fara zonaRata lunară: 471,62 €
Anunță-mă când scade prețul
Trimite oferta de preț
Nr. camere: 2
Suprafață utilă: 55.46 mp
Nr. băi: 1
Etaj: 1 /11
Boxă la subsol: Nu
Tip compartimentare: Decomandat
Vechime apartament: Nou
Tip imobil: Bloc de apartamente
Dotări: Nemobilat
Anul construcției: 2021
Tip finisaj: Semifinisat
Materiale construcție: Beton
Modalitate vânzare: Credit bancar, Cash
Link-uri utile
Linkuri rapide filtrate după cele mai căutate zone și numărul de camere