Apartament cu 3 camere, etajul 3, mobilat modern, parcare, Tineretului
Oferta accesata nu mai este disponibilă.
Poți vedea oferte din aceeași categorie sau poți contacta agentul pentru o oferta personalizată.
VEZI OFERTE SIMILARE
Apartament decomandat, mobilat si utilat, parcare inclusa in pret, zona Eroilor

Apartament la cheie, lift, parcare subterana, terasa de 10 mp, zona Eroilor
Linkuri rapide filtrate după cele mai căutate zone și numărul de camere
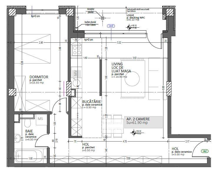
ID: BLITZ 55885AV
Cartier: MarastiPreț/mp: 1.700 €
Actualizat: 14.10.2020
Zona: Fara zonaRata lunară: 535,70 €
Anunță-mă când scade prețul
Trimite oferta de preț
Nr. camere: 2
Suprafață utilă: 61.9 mp
Nr. băi: 1
Nr. balcoane: 1
Etaj: 5 /6
Boxă la subsol: Nu
Tip compartimentare: Semidecomandat
Vechime apartament: Nou
Tip imobil: Bloc de apartamente
Dotări: Nemobilat
Anul construcției: 2020
Tip finisaj: Semifinisat
Materiale construcție: Beton, Cărămidă
Modalitate vânzare: Credit bancar, Cash
Link-uri utile
Linkuri rapide filtrate după cele mai căutate zone și numărul de camere