blitz logo
favorites

black arrow right Oferta accesata nu mai este disponibilă.

Poți vedea oferte din aceeași categorie sau poți contacta agentul pentru o oferta personalizată.

VEZI OFERTE SIMILARE

LINK-URI UTILE

Linkuri rapide filtrate după cele mai căutate zone și numărul de camere

Apartamente de vânzareApartamente de vânzare MarastiApartamente de vânzare 2 camereApartamente de vânzare Marasti 2 camereApartamente de vânzare Marasti, zona Fabricii
Apartament de vânzare 2 camere Marasti - 26570AV | BLITZ Cluj-Napoca | Poza1
Apartament de vânzare 2 camere Marasti - 26570AV | BLITZ Cluj-Napoca | Poza1
Apartament de vânzare 2 camere Marasti - 26570AV | BLITZ Cluj-Napoca | Poza1
Apartament de vânzare 2 camere Marasti - 26570AV | BLITZ Cluj-Napoca | Poza1
Apartament de vânzare 2 camere Marasti - 26570AV | BLITZ Cluj-Napoca | Poza1

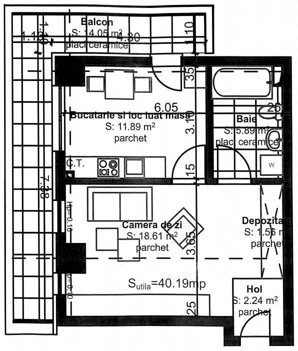
Breaking news! Apartament 43.9 mp, etaj intermediar, semifinisat, zona Kaufland!

ID: BLITZ 26570AV

Cartier: Marasti

Preț/mp: 1.210 €

Actualizat: 14.05.2019

Zona: Fabricii

Rata lunară: 269,81

Agent

    Acest anunț este verificat de către agent

    Te interesează ofertă? Programează o vizionare!
    Vă rugăm să completați chenarul cu informațiile cerute pentru a continua

    53.000

    Trimite ofertă de preț

    Acest anunț este verificat de către agent

      €

    Nr. camere: 2

    Suprafață utilă: 43.8 mp

    Nr. băi: 1

    Nr. balcoane: 1

    Etaj: 3 /6

    Boxă la subsol: Nu

    Tip compartimentare: Semidecomandat

    Vechime apartament: Nou

    Tip imobil: Bloc de apartamente

    Dotări: Nemobilat

    Anul construcției: 2018

    Tip finisaj: Semifinisat

    Materiale construcție: Cărămidă

    Modalitate vânzare: Credit bancar, Cash

    La Blitz credem in relatiile de castig-castig si iti propunem spre achizitie un apartament de 2 camere, semidecomandat, alcatuit din living cu bucatarie, dormitor, baie si balcon.
    Se ofera spre vanzare la stadiul de semifinisata, cu sapa autonivelanta si peretii gletuiti.
    Este la etaj intermediar, 3 din 6, cu priveliste frumoasa. Zona este accesibila, langa statia de autobuz si magazine. Este potrivit pentru tine! Te asteptam sa te convingi sau sa te convingem.
    Optional se poate achizitiona un loc de parcare subterana la pretul de 6000 mii de euro.
    Pretul este valabil la un avans de 45% din suma finala.

    Agent

    Apartament spatios, situat la etajul intermediar al unui imobil nou construit.

    Link-uri utile

    Linkuri rapide filtrate după cele mai căutate zone și numărul de camere

    black friday
    Sună acum
    Inchide
    X

    Te interesează apartamente de vânzare în Cluj-Napoca?

    Lasă-ne datele tale de contact şi te vom consilia în alegerea proprietăţii potrivite!

    Inchide
    X

    Te interesează apartamente de vânzare în Cluj-Napoca?

    Lasă-ne datele tale de contact şi te vom consilia în alegerea proprietăţii potrivite!