Apartament 2 camere, 59 mp, parcare, zona Atelierul de Pizza
Oferta accesata nu mai este disponibilă.
Poți vedea oferte din aceeași categorie sau poți contacta agentul pentru o oferta personalizată.
VEZI OFERTE SIMILARE
Apartament lux 2 camere 45 mp, terasa 8.50 mp, etaj intermediar, garaj, Eroilor

Apartament lux 2 camere 45 mp, terasa 8.50 mp, etaj intermediar, garaj, Eroilor
Linkuri rapide filtrate după cele mai căutate zone și numărul de camere
Anunță-mă când scade prețul
Trimite oferta de preț
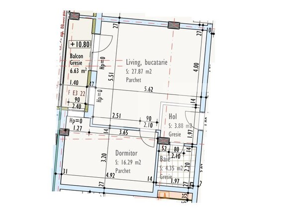
Nr. camere: 2
Suprafață utilă: 52.39 mp
Nr. băi: 1
Nr. balcoane: 1
Etaj: 2 /3
Tip compartimentare: Semidecomandat
Vechime apartament: În construcție
Tip imobil: Bloc de apartamente
Dotări: Nemobilat
Anul construcției: 2024
Tip finisaj: Semifinisat
Link-uri utile
Linkuri rapide filtrate după cele mai căutate zone și numărul de camere