Apartament cu 2 camere, finisat, garaj, parter inalt, zona Teilor
Oferta accesata nu mai este disponibilă.
Poți vedea oferte din aceeași categorie sau poți contacta agentul pentru o oferta personalizată.
VEZI OFERTE SIMILARE
Apartament 2 camere superb • Mobilat complet • Zonă liniștită • Parcare proprie

Apartament 2 camere, 53 mp, zona Teilor, etaj intermediar, cu vedere la pădure
Linkuri rapide filtrate după cele mai căutate zone și numărul de camere
Anunță-mă când scade prețul
Trimite oferta de preț
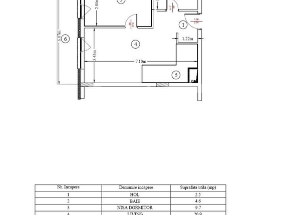
Nr. camere: 2
Suprafață utilă: 42.8 mp
Nr. băi: 1
Nr. balcoane: 1
Etaj: 2 /4
Locuri de parcare: 1 , Garaj
Tip compartimentare: Semidecomandat
Vechime apartament: Nou
Tip imobil: Bloc de apartamente
Dotări: Nemobilat
Anul construcției: 2024
Tip finisaj: Semifinisat
Link-uri utile
Linkuri rapide filtrate după cele mai căutate zone și numărul de camere