Apartament in ansamblu nou, mobilat si utilat, parcare cu CF, zona Eroilor
Oferta accesata nu mai este disponibilă.
Poți vedea oferte din aceeași categorie sau poți contacta agentul pentru o oferta personalizată.
VEZI OFERTE SIMILARE
Apartament cu 2 camere, 56mp, balcon 6mp, parcare inclusa, la cheie, in Apahida

Apartament 2 camere, decomandat, CF, terasa, parcare subterana, boxa, Zona Vivo
Linkuri rapide filtrate după cele mai căutate zone și numărul de camere
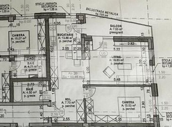
ID: BLITZ 161621AV
Cartier: IrisPreț/mp: 1.754 €
Actualizat: 11.02.2025
Zona: OasuluiRata lunară: 544,71 €
Anunță-mă când scade prețul
Trimite oferta de preț
Nr. camere: 2
Suprafață utilă: 61 mp
Nr. băi: 2
Nr. balcoane: 1
Etaj: 2 /3
Tip compartimentare: Semidecomandat
Vechime apartament: În construcție
Tip imobil: Bloc de apartamente
Dotări: Nemobilat
Anul construcției: Inainte de 1990
Tip finisaj: Semifinisat
Link-uri utile
Linkuri rapide filtrate după cele mai căutate zone și numărul de camere