blitz logo
favorites

black arrow right Oferta accesata nu mai este disponibilă.

Poți vedea oferte din aceeași categorie sau poți contacta agentul pentru o oferta personalizată.

VEZI OFERTE SIMILARE

LINK-URI UTILE

Linkuri rapide filtrate după cele mai căutate zone și numărul de camere

Apartamente de vânzareApartamente de vânzare GrigorescuApartamente de vânzare 2 camereApartamente de vânzare Grigorescu 2 camereApartamente de vânzare Grigorescu, zona Taietura Turcului
Apartament de vânzare 2 camere Grigorescu - 57964AV | BLITZ Cluj-Napoca | Poza1
Apartament de vânzare 2 camere Grigorescu - 57964AV | BLITZ Cluj-Napoca | Poza1
Apartament de vânzare 2 camere Grigorescu - 57964AV | BLITZ Cluj-Napoca | Poza1

Apartament in imobil nou, 2 camere, terasa, zona Mega Image - Eremia Grigorescu

ID: BLITZ 57964AV

Cartier: Grigorescu

Preț/mp: 2.172 €

Actualizat: 05.08.2021

Zona: Taietura Turcului

Rata lunară: 600,70

Agent

    Acest anunț este verificat de către agent

    Te interesează ofertă? Programează o vizionare!
    Vă rugăm să completați chenarul cu informațiile cerute pentru a continua

    118.000

    Trimite ofertă de preț

    Acest anunț este verificat de către agent

      €

    Nr. camere: 2

    Suprafață utilă: 54.32 mp

    Nr. băi: 1

    Nr. balcoane: 2

    Etaj: 1 /3

    Locuri de parcare: 1

    Boxă la subsol: Da

    Tip compartimentare: Semidecomandat

    Vechime apartament: Nou

    Tip imobil: Bloc de apartamente

    Dotări: Nemobilat

    Anul construcției: 2020

    Tip finisaj: Semifinisat

    Materiale construcție: Beton, Cărămidă

    Modalitate vânzare: Credit bancar, Cash

    Blitz Imobiliare recomanda spre vanzare proiect rezidential cu un design arhitectural elegant si o functionalitate mixta, situat in cel mai linistit cartier din oras, la 1400 metri de parcul central si la 7 minute de Piata Unirii.

    Imobilul este in curs de edificare, va fi structurat astfel: D+P+2E+Etaj retras, cumulând 18 apartamente atent poziționate și compartimentate astfel încât contextul creat să deservească nevoilor unui cuplu sau a unei familii. Locatia, Spatiile comerciale de la parter, fatada ventilata placata cu fibrociment respectiv parcarile subterane care beneficiaza de boxe pentru depozitare, sunt doar câteva din detaliile care oferă certitudinea locuinței perfecte.

    Proiectul dispunde de apartamente cu 1, 2 si 3 camere care se vor preda semifinisate, cu sapa autonivelanta, un strat de glet, usa metalica premium la intrare, ferestre termopan cu 7 camere si 3 straturi de sticla, instalatii trase la pozitie, centrala termica in condensare si incalzire prin pardoseala. Terasele se predau finisate cu placi flotante si sticla securizata.


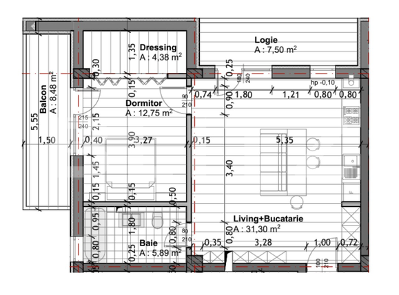
    Apartamentul se afla la etajul 1 orientare sud - vestica, beneficiind de 54.32 mp utili si doua terase care insumeaza 16 mp. Compartimentarea apartamentului este semidecomandata dispusa astfell: living cu bucatarie open space cu posibilitate de decomandare, dormitor de 12 mp si o baie cu geam. Iesirea pe terasa se poate face din ambele incaperi principale ale apartamentului.


    Pretul de promovare contine TVA, avansul minim este de 30% iar parcarea interioara este la pretul de 10 000 Euro + TVA. Termen finalizare toamna 2021.

    Pentru mai multe detalii sau pentru a programa o vizionare nu ezitati sa ne contactati. Va asteptam cu drag!

    Agent

    O atmosferă creată pentru liniștea, siguranța și confortul tau.

    Link-uri utile

    Linkuri rapide filtrate după cele mai căutate zone și numărul de camere

    black friday
    Sună acum
    Inchide
    X

    Te interesează apartamente de vânzare în Cluj-Napoca?

    Lasă-ne datele tale de contact şi te vom consilia în alegerea proprietăţii potrivite!

    Inchide
    X

    Te interesează apartamente de vânzare în Cluj-Napoca?

    Lasă-ne datele tale de contact şi te vom consilia în alegerea proprietăţii potrivite!