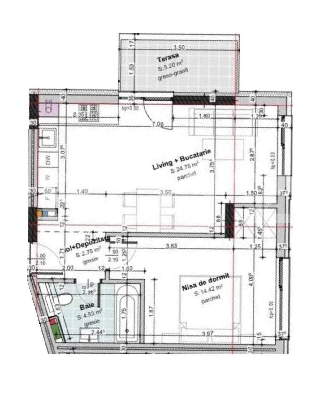
Apartament modern cu 2 camere, complet mobilat, 56 mp, parcare, terasa, Eroilor
Oferta accesata nu mai este disponibilă.
Poți vedea oferte din aceeași categorie sau poți contacta agentul pentru o oferta personalizată.
VEZI OFERTE SIMILARELinkuri rapide filtrate după cele mai căutate zone și numărul de camere
ID: BLITZ 93211AV
Cartier: GheorgheniPreț/mp: 2.906 €
Actualizat: 23.09.2022
Zona: BrancusiRata lunară: 687,25 €
Anunță-mă când scade prețul
Trimite oferta de preț
Nr. camere: 2
Suprafață utilă: 46.46 mp
Nr. băi: 1
Nr. balcoane: 1
Etaj: 2 /6
Locuri de parcare: 1
Boxă la subsol: Nu
Tip compartimentare: Semidecomandat
Vechime apartament: Nou
Tip imobil: Bloc de apartamente
Dotări: Nemobilat
Anul construcției: 2022
Tip finisaj: Semifinisat
Materiale construcție: Beton, Cărămidă
Modalitate vânzare: Credit bancar, Cash
Link-uri utile
Linkuri rapide filtrate după cele mai căutate zone și numărul de camere