Apartament cu 3 camere – posibilitate preluare chiriaș (1750 lei/lună) | Cetatii
Oferta accesata nu mai este disponibilă.
Poți vedea oferte din aceeași categorie sau poți contacta agentul pentru o oferta personalizată.
VEZI OFERTE SIMILARE
Apartament cu 3 camere – posibilitate preluare chiriaș (1750 lei/lună) | Cetatii

Apartament semidecomandat, 49 mp utili, gradina de 95 mp, parcare, zona Eroilor
Linkuri rapide filtrate după cele mai căutate zone și numărul de camere
ID: BLITZ 47019AV
Cartier: GheorgheniPreț/mp: 2.000 €
Actualizat: 09.06.2020
Zona: BrancusiRata lunară: 526,38 €
Anunță-mă când scade prețul
Trimite oferta de preț
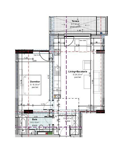
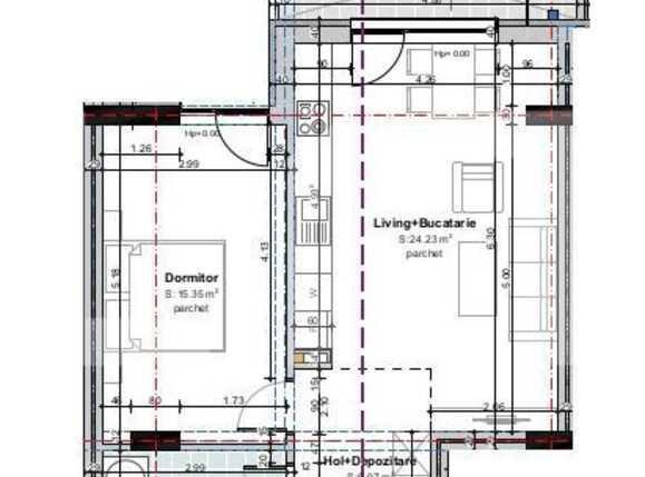
Nr. camere: 2
Suprafață utilă: 51.7 mp
Nr. băi: 1
Etaj: 4 /6
Boxă la subsol: Nu
Tip compartimentare: Semidecomandat
Vechime apartament: În construcție
Tip imobil: Bloc de apartamente
Dotări: Nemobilat
Anul construcției: 2021
Tip finisaj: Semifinisat
Materiale construcție: Cărămidă
Modalitate vânzare: Credit bancar, Cash
Link-uri utile
Linkuri rapide filtrate după cele mai căutate zone și numărul de camere