blitz logo
favorites

black arrow right Oferta accesata nu mai este disponibilă.

Poți vedea oferte din aceeași categorie sau poți contacta agentul pentru o oferta personalizată.

VEZI OFERTE SIMILARE

LINK-URI UTILE

Linkuri rapide filtrate după cele mai căutate zone și numărul de camere

Apartamente de vânzareApartamente de vânzare FloreştiApartamente de vânzare 2 camereApartamente de vânzare Floreşti 2 camereApartamente de vânzare Floreşti, zona Porii
Apartament de vânzare 2 camere Floreşti - 92562AV | BLITZ Cluj-Napoca | Poza1
Apartament de vânzare 2 camere Floreşti - 92562AV | BLITZ Cluj-Napoca | Poza2
Apartament de vânzare 2 camere Floreşti - 92562AV | BLITZ Cluj-Napoca | Poza1
Apartament de vânzare 2 camere Floreşti - 92562AV | BLITZ Cluj-Napoca | Poza2
Apartament de vânzare 2 camere Floreşti - 92562AV | BLITZ Cluj-Napoca | Poza1
Apartament de vânzare 2 camere Floreşti - 92562AV | BLITZ Cluj-Napoca | Poza2

Apartament de 2 camere, 49 mp, zona Porii

ID: BLITZ 92562AV

Cartier: Floreşti

Preț/mp: 1.200 €

Actualizat: 12.01.2024

Zona: Porii

Rata lunară: 299,33

Agent

    Te interesează ofertă? Programează o vizionare!
    Vă rugăm să completați chenarul cu informațiile cerute pentru a continua

    58.800

    Trimite ofertă de preț

    Acest anunț este verificat de către agent

      €

    Nr. camere: 2

    Suprafață utilă: 49 mp

    Nr. băi: 1

    Nr. balcoane: 1

    Etaj: 1 /3

    Locuri de parcare: 1

    Boxă la subsol: Nu

    Tip compartimentare: Semidecomandat

    Vechime apartament: În construcție

    Tip imobil: Bloc de apartamente

    Dotări: Nemobilat

    Anul construcției: 2023

    Tip finisaj: Semifinisat

    Materiale construcție: Cărămidă

    Modalitate vânzare: Credit bancar, Cash

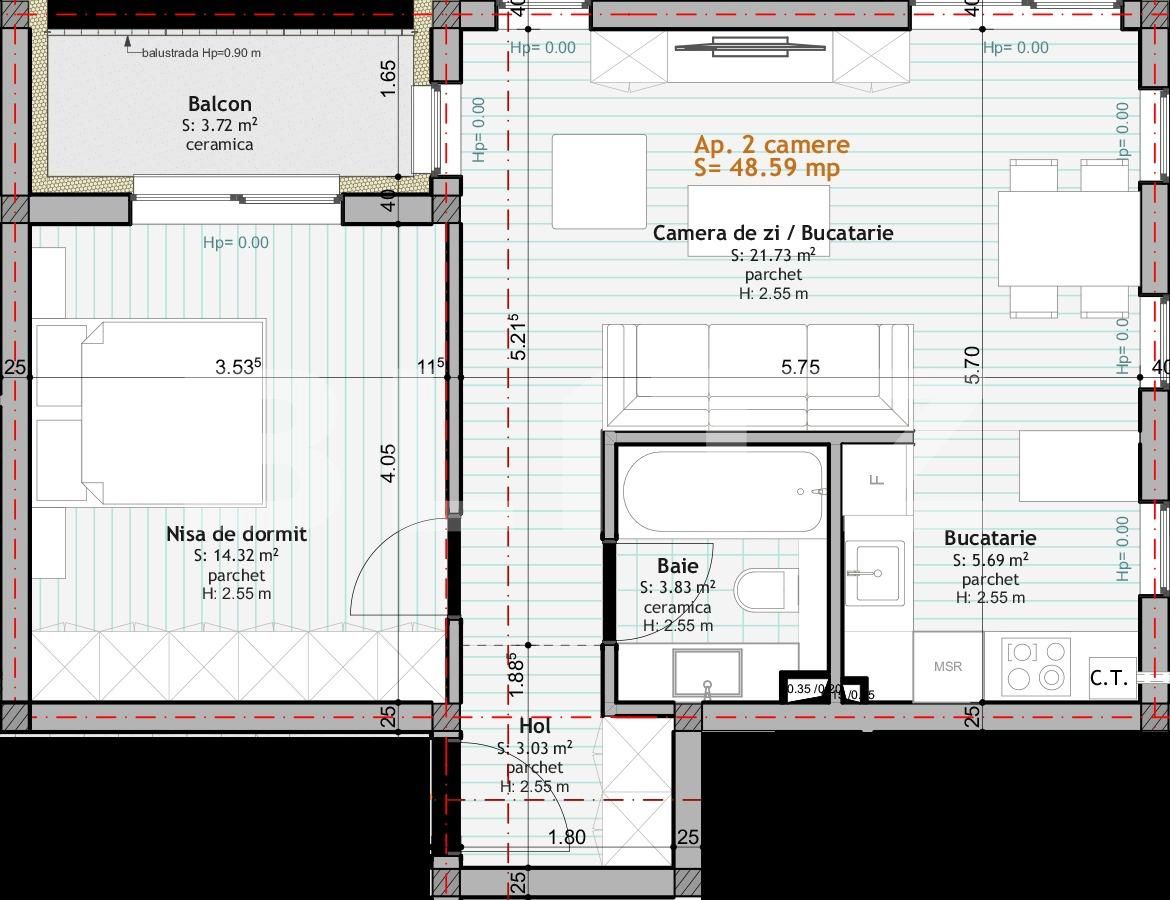
    Blitz are placerea de a va oferi spre vanzare un apartament modern de 2 camere in zona Porii! Apartamentul are o suprafata utila de 49mp utili, situarea apartamentului este intr-o zona linistita, iar imediata apropiere sunt magazine alimentare, parcuri si la doar cateva minute de mers cu masina este supermarket-ul Lidl, de asemenea acesul este facil catre mijloacele de transport in comun.
    Compartimentarea este decomandata, gandita astfel: dormitor matrimonial, nisa de dormitor, living cu bucatarie, hol, baie si nu in ultimul rand un balcon.
    Imobilul se afla la etajul 1 al unui imobil format din 3 etaje.
    Apartamentul mai beneficiaza si de o parcare privata.
    Pentru mai multe detalii sau pentru a programa o vizionare va asteptam sa ne contactati.

    Agent

    Ideal pentru un cuplu!

    Link-uri utile

    Linkuri rapide filtrate după cele mai căutate zone și numărul de camere

    black friday
    Sună acum
    Inchide
    X

    Te interesează apartamente de vânzare în Cluj-Napoca?

    Lasă-ne datele tale de contact şi te vom consilia în alegerea proprietăţii potrivite!

    Inchide
    X

    Te interesează apartamente de vânzare în Cluj-Napoca?

    Lasă-ne datele tale de contact şi te vom consilia în alegerea proprietăţii potrivite!