Apartament lux 2 camere 45 mp, terasa 10.50 mp, etaj intermediar, garaj, Eroilor
ID: BLITZ 185120AV
Cartier: FloreştiPreț/mp: 2.699 €
Actualizat: 27.03.2026
Zona: EroilorRata lunară: 642,96 €
Anunță-mă când scade prețul
Trimite oferta de preț
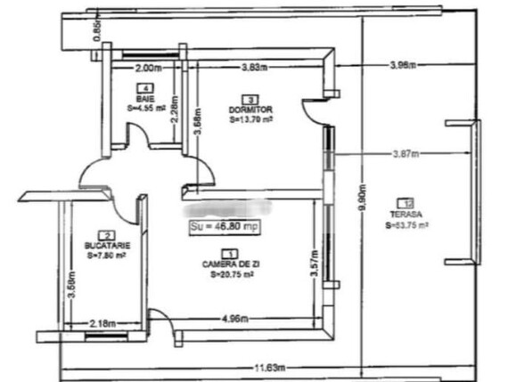
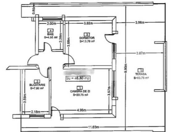
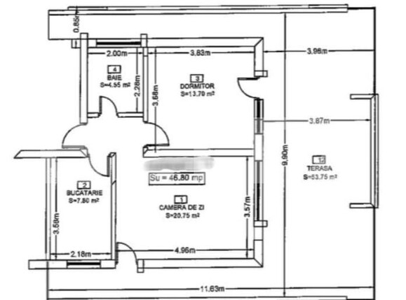
Nr. camere: 2
Suprafață utilă: 46.8 mp
Nr. băi: 1
Etaj: 3 /3
Locuri de parcare: 1
Tip compartimentare: Decomandat
Vechime apartament: Nou
Tip imobil: Bloc de apartamente
Dotări: Nemobilat
Anul construcției: 2025
Tip finisaj: Semifinisat
Evoluție Indice Blitz:
Apartament lux 2 camere 45 mp, terasa 10.50 mp, etaj intermediar, garaj, Eroilor
Apartament lux 2 camere 45 mp, terasa 8 mp, etaj intermediar, garaj, Eroilor
Apartament 2 camere, 55 mp, la cheie, etaj intermediar, zona Edgar, Manastur
Link-uri utile
Linkuri rapide filtrate după cele mai căutate zone și numărul de camere


