Apartament 2 camere, 60 mp, parcare subterana inclusă, balcon, zona Sub Cetate
Oferta accesata nu mai este disponibilă.
Poți vedea oferte din aceeași categorie sau poți contacta agentul pentru o oferta personalizată.
VEZI OFERTE SIMILARE
Apartament 2 camere, 60 mp, parcare subterana inclusă, balcon, zona Sub Cetate

Apartament 2 camere, decomandat, CF, terasa, parcare subterana, boxa, Zona Vivo
Linkuri rapide filtrate după cele mai căutate zone și numărul de camere
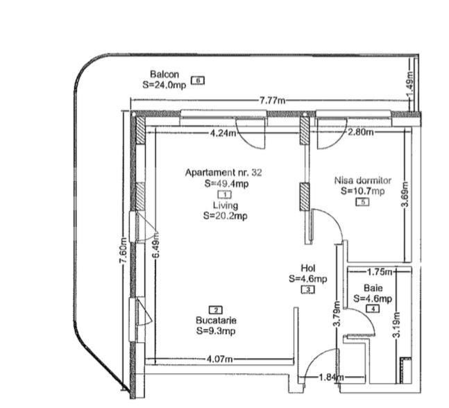
ID: BLITZ 163506AV
Cartier: FloreştiPreț/mp: 2.287 €
Actualizat: 28.03.2025
Zona: EroilorRata lunară: 575,25 €
Anunță-mă când scade prețul
Trimite oferta de preț
Nr. camere: 2
Suprafață utilă: 49.4 mp
Nr. băi: 1
Etaj: 3 /7
Locuri de parcare: 1
Tip compartimentare: Semidecomandat
Vechime apartament: Nou
Tip imobil: Bloc de apartamente
Dotări: Mobilat/utilat
Anul construcției: 2023
Tip finisaj: Finisat
Link-uri utile
Linkuri rapide filtrate după cele mai căutate zone și numărul de camere