Apartament cu 2 camere, etajul 1, parcare, balcon, zona ultracentrală
Oferta accesata nu mai este disponibilă.
Poți vedea oferte din aceeași categorie sau poți contacta agentul pentru o oferta personalizată.
VEZI OFERTE SIMILARE
Apartament luminos 2 camere, 39 mp, etaj intarmediar, parcare, zona Eroilor

Apartament 2 camere, 50 mp, cu loc de parcare, zona Blocuri - Campia Turzii
Linkuri rapide filtrate după cele mai căutate zone și numărul de camere
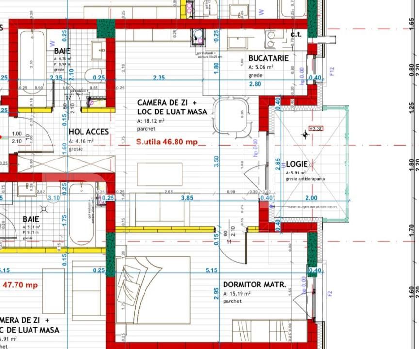
ID: BLITZ 161906AV
Cartier: FloreştiPreț/mp: 1.620 €
Actualizat: 28.03.2025
Zona: EroilorRata lunară: 385,88 €
Anunță-mă când scade prețul
Trimite oferta de preț
Nr. camere: 2
Suprafață utilă: 46.8 mp
Nr. băi: 1
Nr. balcoane: 1
Etaj: 1 /4
Locuri de parcare: 2 , Garaj
Tip compartimentare: Semidecomandat
Vechime apartament: În construcție
Tip imobil: Bloc de apartamente
Dotări: Nemobilat
Anul construcției: 2024
Tip finisaj: Finisat
Link-uri utile
Linkuri rapide filtrate după cele mai căutate zone și numărul de camere