Apartament cu 2 camere, etajul 3 din 4, zona linistita, Gheorgheni
Oferta accesata nu mai este disponibilă.
Poți vedea oferte din aceeași categorie sau poți contacta agentul pentru o oferta personalizată.
VEZI OFERTE SIMILARE
Apartament semidecomandat complet mobilat si utilat, parcare inclusa, zona Terra

Apartament decomandat cu 2 camere, 41 mp utili, parcare inclusa, zona Terra
Linkuri rapide filtrate după cele mai căutate zone și numărul de camere
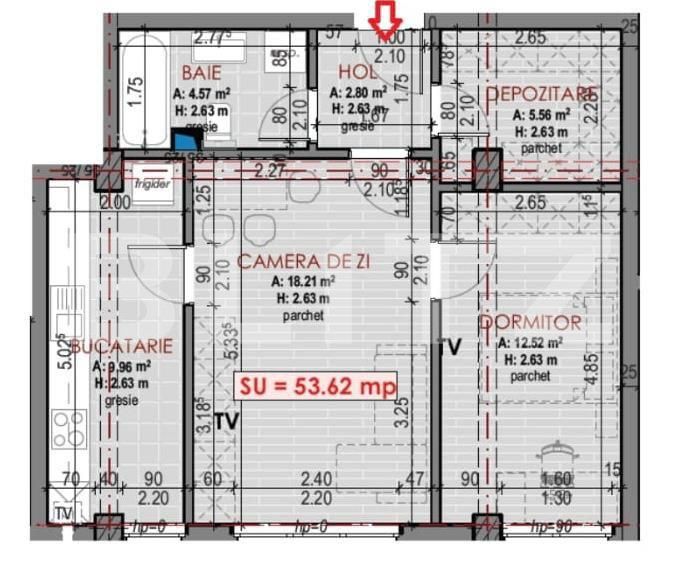
ID: BLITZ 139343AV
Cartier: FloreştiPreț/mp: 1.722 €
Actualizat: 24.10.2025
Zona: TerraRata lunară: 473,44 €
Anunță-mă când scade prețul
Trimite oferta de preț
Nr. camere: 2
Suprafață utilă: 54 mp
Nr. băi: 1
Nr. balcoane: 1
Etaj: Parter /2
Locuri de parcare: 1
Tip compartimentare: Decomandat
Vechime apartament: Nou
Tip imobil: Bloc de apartamente
Dotări: Nemobilat
Anul construcției: 2024
Tip finisaj: Modern/lux
Link-uri utile
Linkuri rapide filtrate după cele mai căutate zone și numărul de camere