Apartament in ansamblu nou, mobilat si utilat, parcare cu CF, zona Eroilor
Oferta accesata nu mai este disponibilă.
Poți vedea oferte din aceeași categorie sau poți contacta agentul pentru o oferta personalizată.
VEZI OFERTE SIMILARE
Apartament cu 2 camere, 56mp, balcon 6mp, parcare inclusa, la cheie, in Apahida

Apartament 2 camere, decomandat, CF, terasa, parcare subterana, boxa, Zona Vivo
Linkuri rapide filtrate după cele mai căutate zone și numărul de camere
ID: BLITZ 69508AV
Cartier: Dambul RotundPreț/mp: 1.650 €
Actualizat: 24.10.2023
Zona: Corneliu CoposuRata lunară: 520,78 €
Anunță-mă când scade prețul
Trimite oferta de preț
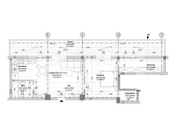
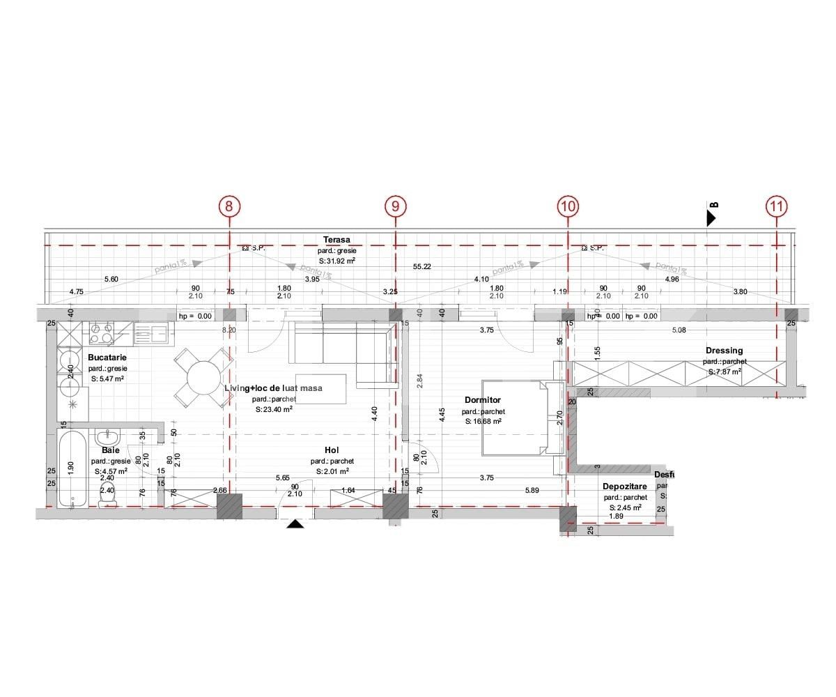
Nr. camere: 2
Suprafață utilă: 62 mp
Nr. băi: 1
Etaj: 4 /5
Locuri de parcare: 1
Boxă la subsol: Nu
Tip compartimentare: Semidecomandat
Vechime apartament: Nou
Tip imobil: Bloc de apartamente
Dotări: Nemobilat
Anul construcției: 2021
Tip finisaj: Semifinisat
Materiale construcție: Beton, Cărămidă
Modalitate vânzare: În rate la constructor, Credit bancar, Cash
Link-uri utile
Linkuri rapide filtrate după cele mai căutate zone și numărul de camere