Apartament 3 camere, 64mp, balcon, parcare, zona Teilor
Oferta accesata nu mai este disponibilă.
Poți vedea oferte din aceeași categorie sau poți contacta agentul pentru o oferta personalizată.
VEZI OFERTE SIMILARE
Apartament 42 mp, et 2, încălzire pardoseala, lift, parcare, priveliste, Baciu

EXCLUSIV! Apartament 3 camere, 60 mp, intermediar, parcare, Zona Tineretului !
Linkuri rapide filtrate după cele mai căutate zone și numărul de camere
ID: BLITZ 69116AV
Cartier: Dambul RotundPreț/mp: 1.750 €
Actualizat: 26.04.2022
Zona: Corneliu CoposuRata lunară: 427,62 €
Anunță-mă când scade prețul
Trimite oferta de preț
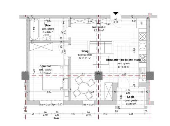
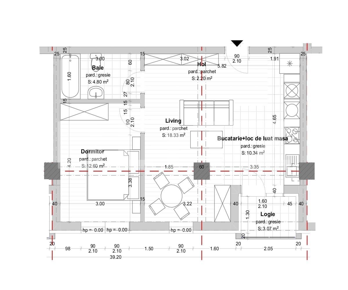
Nr. camere: 2
Suprafață utilă: 48 mp
Nr. băi: 1
Nr. balcoane: 1
Etaj: 1 /5
Locuri de parcare: 1
Boxă la subsol: Nu
Tip compartimentare: Semidecomandat
Vechime apartament: În construcție
Tip imobil: Bloc de apartamente
Dotări: Nemobilat
Anul construcției: 2021
Tip finisaj: Semifinisat
Materiale construcție: Beton, Cărămidă
Modalitate vânzare: În rate la constructor, Credit bancar, Cash
Link-uri utile
Linkuri rapide filtrate după cele mai căutate zone și numărul de camere