Apartament luminos 2 camere, 39 mp, etaj intarmediar, parcare, zona Eroilor
Oferta accesata nu mai este disponibilă.
Poți vedea oferte din aceeași categorie sau poți contacta agentul pentru o oferta personalizată.
VEZI OFERTE SIMILARE
Apartament luminos 2 camere, 39 mp, etaj intarmediar, parcare, zona Eroilor

Apartament 2 camere, 50 mp, cu loc de parcare, zona Blocuri - Campia Turzii
Linkuri rapide filtrate după cele mai căutate zone și numărul de camere
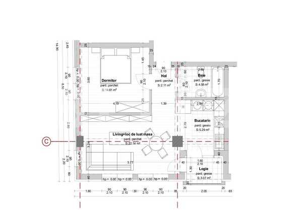
ID: BLITZ 69112AV
Cartier: Dambul RotundPreț/mp: 1.450 €
Actualizat: 26.04.2022
Zona: Corneliu CoposuRata lunară: 354,31 €
Anunță-mă când scade prețul
Trimite oferta de preț
Nr. camere: 2
Suprafață utilă: 48 mp
Nr. băi: 1
Nr. balcoane: 1
Etaj: 1 /5
Locuri de parcare: 1
Boxă la subsol: Nu
Tip compartimentare: Semidecomandat
Vechime apartament: În construcție
Tip imobil: Bloc de apartamente
Dotări: Nemobilat
Anul construcției: 2021
Tip finisaj: Semifinisat
Materiale construcție: Beton, Cărămidă
Modalitate vânzare: În rate la constructor, Credit bancar, Cash
Link-uri utile
Linkuri rapide filtrate după cele mai căutate zone și numărul de camere