Apartament decomandat cu 2 camere, 47,3 mp, cu loc de parcare, zona Blocuri
Oferta accesata nu mai este disponibilă.
Poți vedea oferte din aceeași categorie sau poți contacta agentul pentru o oferta personalizată.
VEZI OFERTE SIMILARE
Apartament decomandat cu 2 camere, 47,3 mp, cu loc de parcare, zona Blocuri

COMISION 0 !! Apartamente 1-3 camere, 37-60 mp, intermediar, garaj, zona Terra
Linkuri rapide filtrate după cele mai căutate zone și numărul de camere
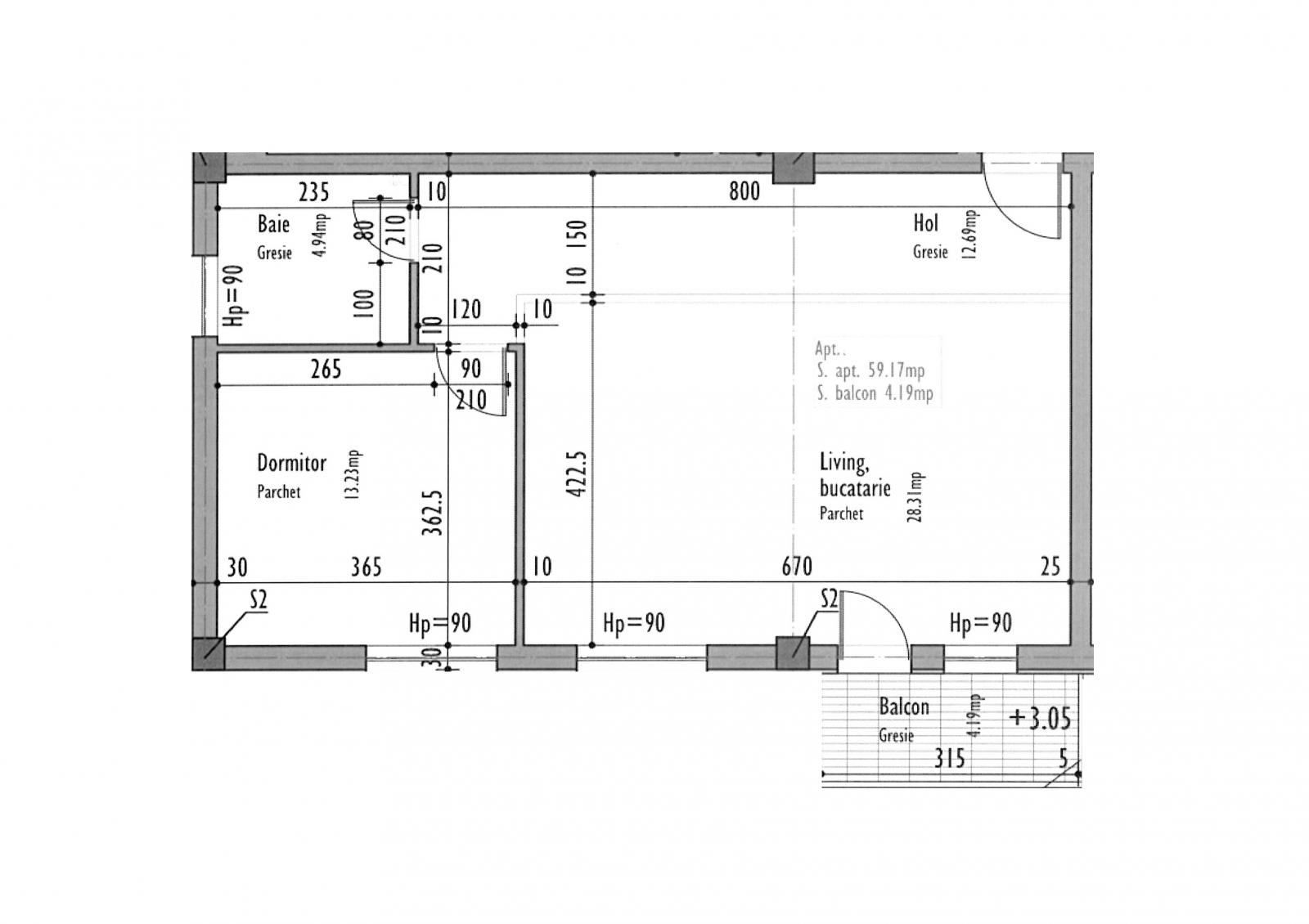
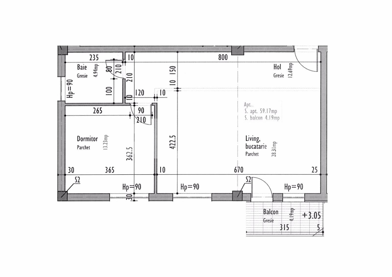
ID: BLITZ 25096AV
Cartier: Dambul RotundPreț/mp: 1.103 €
Actualizat: 13.03.2018
Zona: Calea BaciuluiRata lunară: 331,34 €
Anunță-mă când scade prețul
Trimite oferta de preț
Nr. camere: 2
Suprafață utilă: 59 mp
Nr. băi: 1
Nr. balcoane: 1
Etaj: 2 /5
Boxă la subsol: Nu
Tip compartimentare: Semidecomandat
Vechime apartament: În construcție
Tip imobil: Bloc de apartamente
Dotări: Nemobilat
Anul construcției: 2017
Tip finisaj: Semifinisat
Materiale construcție: Cărămidă
Modalitate vânzare: În rate la constructor, Credit bancar, Cash
Link-uri utile
Linkuri rapide filtrate după cele mai căutate zone și numărul de camere