Apartament cu 3 camere – posibilitate preluare chiriaș (1750 lei/lună) | Cetatii
Oferta accesata nu mai este disponibilă.
Poți vedea oferte din aceeași categorie sau poți contacta agentul pentru o oferta personalizată.
VEZI OFERTE SIMILARE
Apartament cu 3 camere – posibilitate preluare chiriaș (1750 lei/lună) | Cetatii

Apartament semidecomandat, 49 mp utili, gradina de 95 mp, parcare, zona Eroilor

Apartament decomandat, 51 mp utili, lift, parcare inclusa in pret, zona Terra
Linkuri rapide filtrate după cele mai căutate zone și numărul de camere
ID: BLITZ 41898AV
Cartier: CentralPreț/mp: 1.879 €
Actualizat: 29.10.2020
Zona: P-ta Mihai ViteazuRata lunară: 551,32 €
Anunță-mă când scade prețul
Trimite oferta de preț
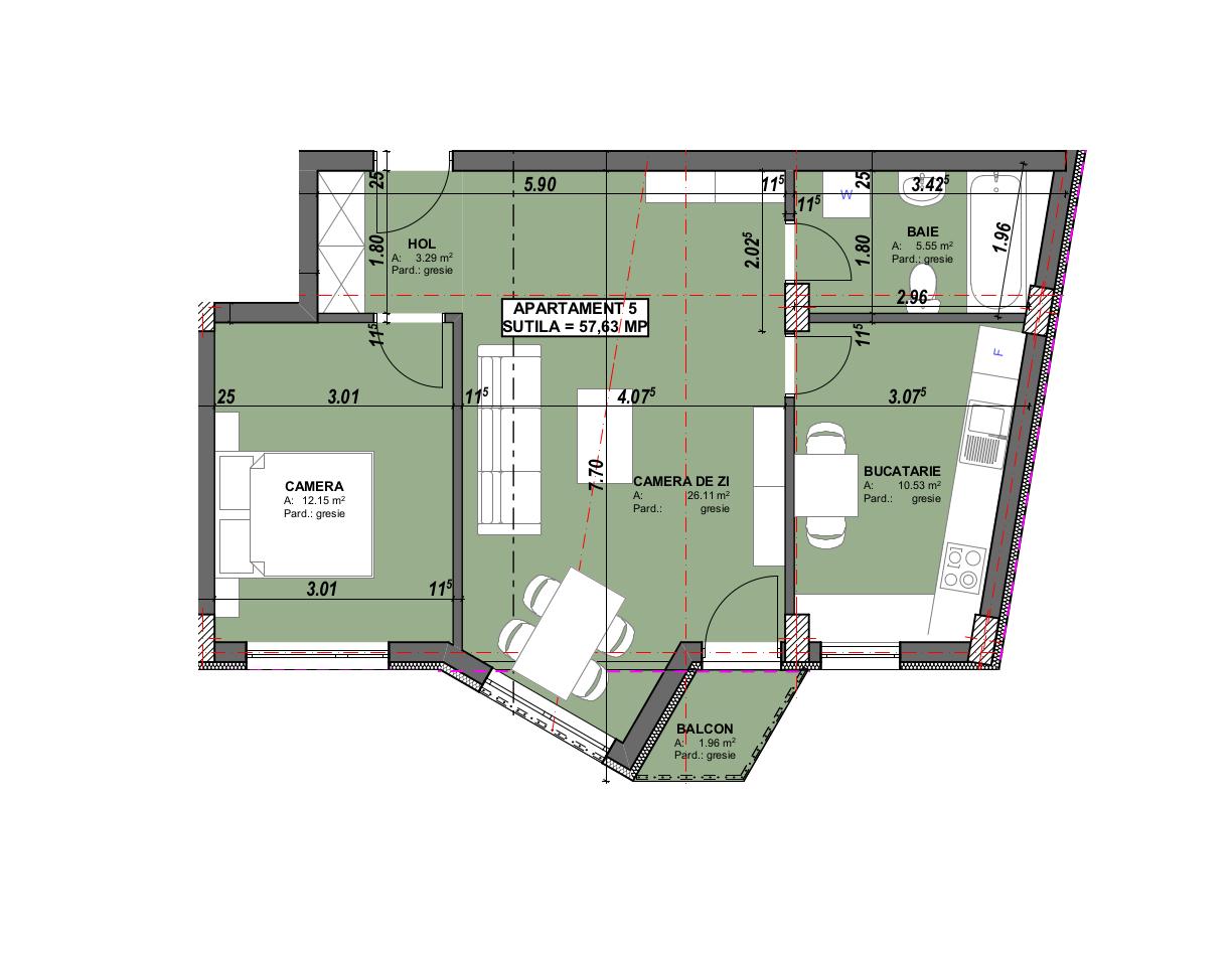
Nr. camere: 2
Suprafață utilă: 57.63 mp
Nr. băi: 1
Nr. balcoane: 1
Etaj: 1 /4
Boxă la subsol: Nu
Tip compartimentare: Decomandat
Vechime apartament: În construcție
Tip imobil: Bloc de apartamente
Dotări: Nemobilat
Anul construcției: 2020
Tip finisaj: Semifinisat
Materiale construcție: Cărămidă
Modalitate vânzare: Credit bancar, Cash
Link-uri utile
Linkuri rapide filtrate după cele mai căutate zone și numărul de camere