blitz logo
favorites

black arrow right Oferta accesata nu mai este disponibilă.

Poți vedea oferte din aceeași categorie sau poți contacta agentul pentru o oferta personalizată.

VEZI OFERTE SIMILARE

LINK-URI UTILE

Linkuri rapide filtrate după cele mai căutate zone și numărul de camere

Apartamente de vânzareApartamente de vânzare CentralApartamente de vânzare 2 camereApartamente de vânzare Central 2 camereApartamente de vânzare Central, zona P-ta Mihai Viteazu
Apartament de vânzare 2 camere Central - 38141AV | BLITZ Cluj-Napoca | Poza1
Apartament de vânzare 2 camere Central - 38141AV | BLITZ Cluj-Napoca | Poza1
Apartament de vânzare 2 camere Central - 38141AV | BLITZ Cluj-Napoca | Poza1

Daca vrei un apartament la doi pasi de Piata Mihai Viteazul...

ID: BLITZ 38141AV

Cartier: Central

Preț/mp: 1.500 €

Actualizat: 06.01.2020

Zona: P-ta Mihai Viteazu

Rata lunară: 503,98

Agent

    Acest anunț este verificat de către agent

    Te interesează ofertă? Programează o vizionare!
    Vă rugăm să completați chenarul cu informațiile cerute pentru a continua

    99.000

    Trimite ofertă de preț

    Acest anunț este verificat de către agent

      €

    Nr. camere: 2

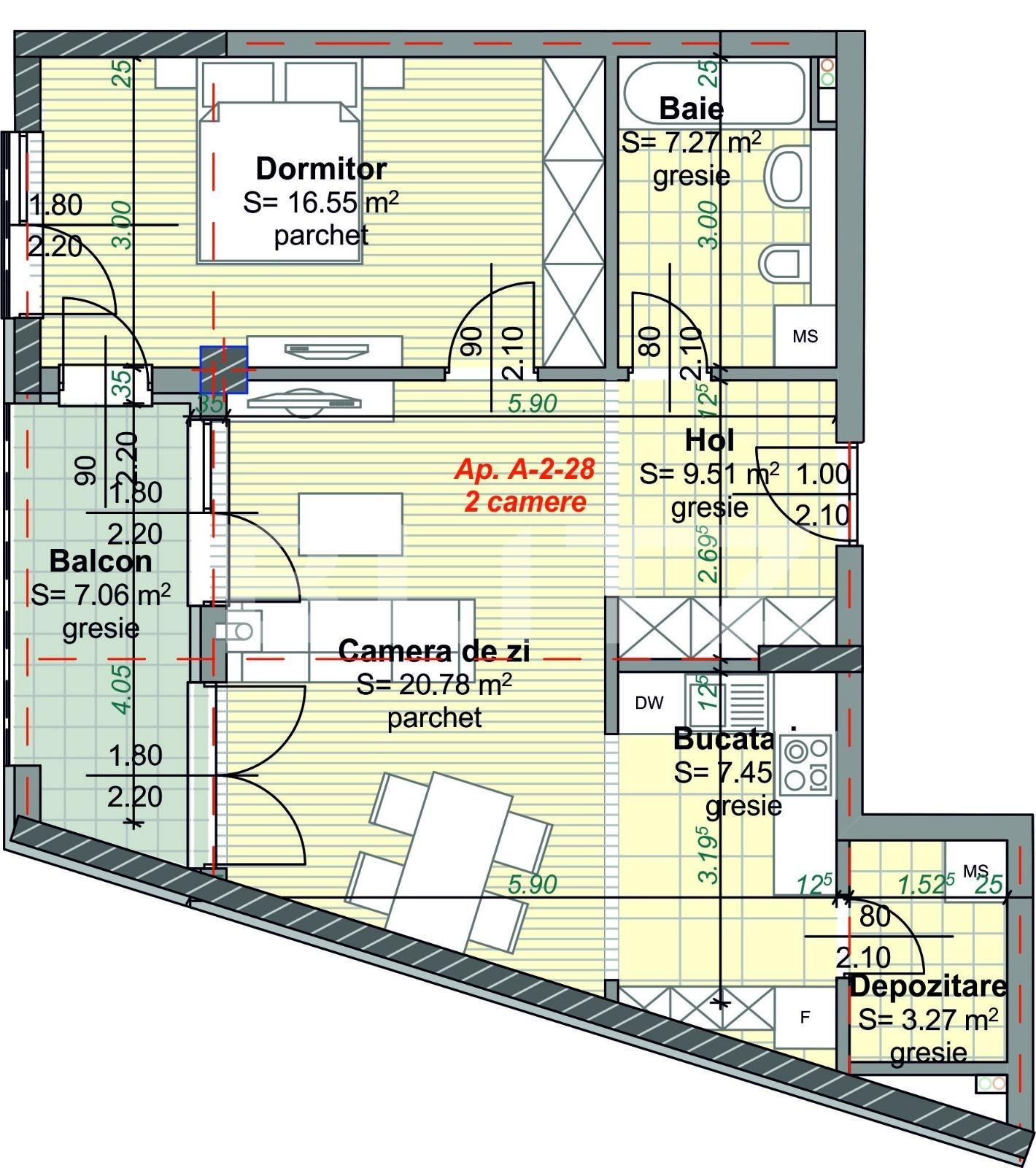
    Suprafață utilă: 66 mp

    Nr. băi: 1

    Nr. balcoane: 1

    Etaj: 2 /6

    Boxă la subsol: Nu

    Tip compartimentare: Semidecomandat

    Vechime apartament: Nou

    Tip imobil: Bloc de apartamente

    Dotări: Nemobilat

    Anul construcției: 2019

    Tip finisaj: Semifinisat

    Materiale construcție: Beton, Cărămidă

    Blitz ofera spre vanzare apartament cu 2 camere, situat in zona Piata Mihai Viteazu. Acesta este pozitionat la etajul 2 intr-un imobil cu 6 niveluri, are orientare vestica si dispune de o suprafata utila de 66 mp.
    Compartimentarea apartamentului este semidecomandata, gandita astfel: living open space cu bucataria si loc de luat masa, dormitor, spatiu de depozitare, hol, baie si balcon. Beneficiaza de centrala termica proprie, geamuri termopan cu tamplarie din PVC si usa metalica la intrare.
    Se ofera spre vanzare la stadiul de semifinisat, cu sapa autonivelanta si peretii gletuiti.

    Agent

    Apartament pretabil pentru investitie.

    Link-uri utile

    Linkuri rapide filtrate după cele mai căutate zone și numărul de camere

    black friday
    Sună acum
    Inchide
    X

    Te interesează apartamente de vânzare în Cluj-Napoca?

    Lasă-ne datele tale de contact şi te vom consilia în alegerea proprietăţii potrivite!

    Inchide
    X

    Te interesează apartamente de vânzare în Cluj-Napoca?

    Lasă-ne datele tale de contact şi te vom consilia în alegerea proprietăţii potrivite!