Apartament 3 camere, scara interioara, 2 balcoane, 64 mp, zona Porii
Oferta accesata nu mai este disponibilă.
Poți vedea oferte din aceeași categorie sau poți contacta agentul pentru o oferta personalizată.
VEZI OFERTE SIMILARE
Apartament semidecomandat, 49 mp utili, gradina de 95 mp, parcare, zona Eroilor

Apartament decomandat, 51 mp utili, lift, parcare inclusa in pret, zona Terra
Linkuri rapide filtrate după cele mai căutate zone și numărul de camere
ID: BLITZ 50303AV
Cartier: BorhanciPreț/mp: 1.929 €
Actualizat: 05.04.2021
Zona: Voievodul GeluRata lunară: 539,89 €
Anunță-mă când scade prețul
Trimite oferta de preț
Nr. camere: 2
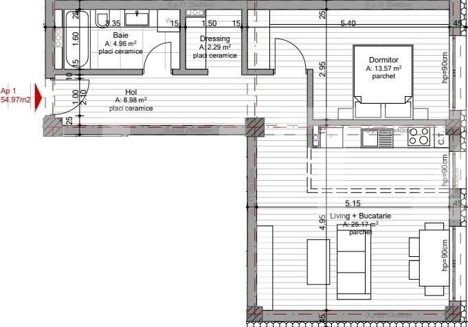
Suprafață utilă: 54.97 mp
Nr. băi: 1
Etaj: Parter /3
Boxă la subsol: Nu
Tip compartimentare: Semidecomandat
Vechime apartament: Nou
Tip imobil: Bloc de apartamente
Dotări: Nemobilat
Anul construcției: 2018
Tip finisaj: Semifinisat
Materiale construcție: Cărămidă
Modalitate vânzare: Credit bancar, Cash
Link-uri utile
Linkuri rapide filtrate după cele mai căutate zone și numărul de camere