Apartament 3 camere, 39.90 mp, zona Centrala - Campia Turzii
Oferta accesata nu mai este disponibilă.
Poți vedea oferte din aceeași categorie sau poți contacta agentul pentru o oferta personalizată.
VEZI OFERTE SIMILARE
COMISION 0 !! Apartamente 1-3 camere, 37-60 mp, intermediar, garaj, zona Terra

COMISION 0 !! Apartamente 1-3 camere, 37-60 mp, intermediar, garaj, zona Terra
Linkuri rapide filtrate după cele mai căutate zone și numărul de camere
Anunță-mă când scade prețul
Trimite oferta de preț
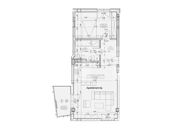
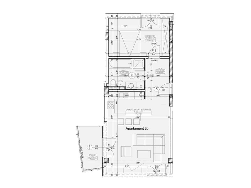
Nr. camere: 2
Suprafață utilă: 57 mp
Nr. băi: 1
Nr. balcoane: 1
Etaj: 1 /3
Boxă la subsol: Nu
Tip compartimentare: Semidecomandat
Vechime apartament: În construcție
Tip imobil: Bloc de apartamente
Dotări: Nemobilat
Anul construcției: Inainte de 1990
Tip finisaj: Semifinisat
Materiale construcție: Cărămidă
Modalitate vânzare: Credit bancar, Cash
Link-uri utile
Linkuri rapide filtrate după cele mai căutate zone și numărul de camere