blitz logo
favorites

black arrow right Oferta accesata nu mai este disponibilă.

Poți vedea oferte din aceeași categorie sau poți contacta agentul pentru o oferta personalizată.

VEZI OFERTE SIMILARE

LINK-URI UTILE

Linkuri rapide filtrate după cele mai căutate zone și numărul de camere

Apartamente de vânzareApartamente de vânzare BorhanciApartamente de vânzare 2 camereApartamente de vânzare Borhanci 2 camere
Apartament de vânzare 2 camere Borhanci - 23574AV | BLITZ Cluj-Napoca | Poza1
Apartament de vânzare 2 camere Borhanci - 23574AV | BLITZ Cluj-Napoca | Poza1
Apartament de vânzare 2 camere Borhanci - 23574AV | BLITZ Cluj-Napoca | Poza1

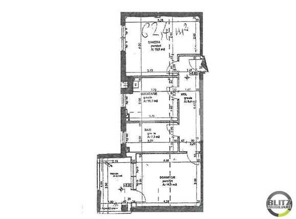
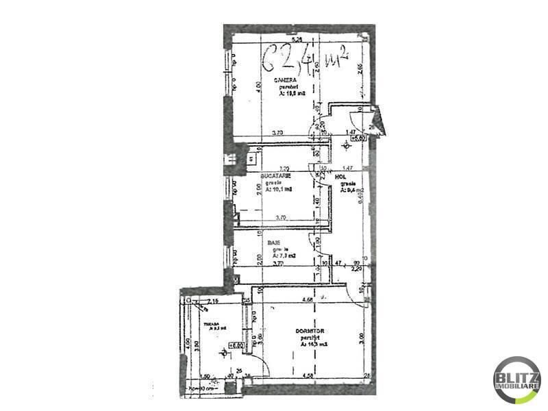
2 camere, 62,4 mp, etaj intermediar, imobil nou, zona strazii Borhanciului

ID: BLITZ 23574AV

Cartier: Borhanci

Preț/mp: 1.190 €

Actualizat: 04.09.2019

Zona: Fara zona

Rata lunară: 377,99

Agent

    Acest anunț este verificat de către agent

    Te interesează ofertă? Programează o vizionare!
    Vă rugăm să completați chenarul cu informațiile cerute pentru a continua

    74.250

    Trimite ofertă de preț

    Acest anunț este verificat de către agent

      €

    Nr. camere: 2

    Suprafață utilă: 62.4 mp

    Nr. băi: 1

    Nr. balcoane: 1

    Etaj: 2 /5

    Boxă la subsol: Nu

    Tip compartimentare: Decomandat

    Vechime apartament: Nou

    Tip imobil: Bloc de apartamente

    Dotări: Nemobilat

    Anul construcției: 2017

    Tip finisaj: Finisat

    Materiale construcție: Cărămidă

    Modalitate vânzare: Credit bancar, Cash

    Blitz Imobiliare ofera spre vanzare apartament cu 2 camere, situat in zona strazii Borhanciului.
    Apartamentul este pozitionat la etajul 2 intr-un imobil cu 5 nivele si dispune de o suprafata utila de 62.4 mp.
    Compartimentarea este gandita astfel: 2 camere decomandate, bucatarie, baie, hol si balcon de 9.1 mp.
    Beneficiaza de centrala termica proprie, geamuri termopan cu tamplarie din PVC si usa metalica la intrare.
    Se vinde la stadiul de finisat.
    Optional, se pot achizitiona un garaj contra sumei de 5000 de euro si un loc de parcare contra sumei de 2500 de euro.

    Agent

    Un apartament finisat modern, situat intr-o zona linistita, nou dezvoltata.

    Link-uri utile

    Linkuri rapide filtrate după cele mai căutate zone și numărul de camere

    black friday
    Sună acumScrie mesaj
    Inchide
    X

    Te interesează apartamente de vânzare în Cluj-Napoca?

    Lasă-ne datele tale de contact şi te vom consilia în alegerea proprietăţii potrivite!